Maison neuve à
Longuesse
(95450) Référence :
AF2247140_2
Prix du projet : Maison avec Terrain
prix 305 000 €
- 5 pièces
- 3 chambres
- Surface maison 90 m2
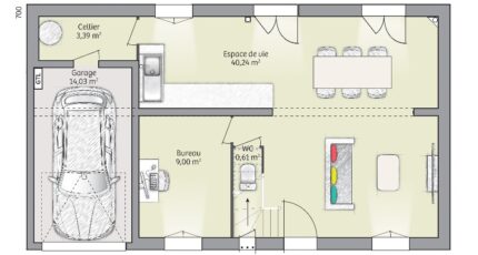
Maison T5 (90 m²) à vendre à Longuesse
PROCHE D'ARGENTEUIL - MAISON 5 PIÈCES NEUVE
À proximité de la gare d'Us (Paris à 45 min avec le Transilien J), votre agence Maisons Balency Pierrelaye est ravie de vous présenter cette maison de 5 pièces de 90 m² et de 330 m² de terrain à Longuesse (95450). Elle propose trois chambres, une cuisine et une salle de bains.
Cette maison comporte 2 niveaux. Elle est neuve.
Il y a une école primaire dans le quartier. Niveau transports, on trouve la ligne de RER A (Cergy Le Haut) ainsi que 14 gares à moins de 10 minutes en voiture. On trouve une bibliothèque et un tennis à quelques minutes de la maison.
Elle est proposée à l'achat pour 305 000 €.
Contactez Antoine FLIPPE (07-82-59-37-75) pour toute information sur la maison ou sur les modalités de vente. Maisons Balency Pierrelaye est là pour vous accompagner dans tous vos projets immobiliers.
Annonce proposée par un Agent Commercial Partenaire.
Mentions légales
Terrain proposé par un partenaire foncier selon disponibilités et autorisation de publicité au prix de 128 000 €. Hors droit d'enregistrement et frais de notaire. Maison proposée, avec un contrat de construction de maison individuelle, dans le cadre de la loi du 19/12/1990, au prix de 177 000 € (Hors branchements et raccordements, papiers peints, peintures, revêtement de sol dans les chambres, qui sont chiffrés dans les travaux qui restent à charge du client. Tarif modifiable sans préavis). Étiquette énergie : A. Différents modèles disponibles pour ce terrain. Assurances et garanties du constructeur comprises (RC professionnelle, décennale, dommage ouvrage).Agence Maisons Balency de Baillet-en-France (95560)
- Téléphone :
- 01 34 46 05 23
- Adressse :
- 81 rue de Paris
95560 Baillet-en-France, France
