Maison neuve à
Louveciennes
(78430) Référence :
CM2332993_2
Prix du projet : Maison avec Terrain
prix 1 160 000 €
- 6 pièces
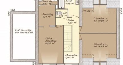
- 4 chambres
- Surface maison 139 m2
VENTE : maison T6 (139 m²) à Louveciennes
PROCHE DE PARIS - MAISON 6 PIÈCES NEUVE
À vendre : à côté du Transilien L (35 min de Paris), à Louveciennes (78430), nous sommes heureux de vous proposer cette maison de 6 pièces de 139 m². Son intérieur compte quatre chambres, une cuisine et deux salles de bains.
Le terrain du bien s'étend sur 880 m².
C'est une maison de 2 niveaux. Elle est neuve.
Des écoles maternelles et élémentaires se trouvent à moins de 10 minutes à pied, tout comme une structure d'accueil pour la petite enfance. Niveau transports, il y a la gare Louveciennes dans les alentours. On trouve une bibliothèque, deux commerces, deux boulangeries, une boucherie-charcuterie, un bureau de poste et une épicerie à proximité.
Elle est proposée à l'achat pour 1 160 000 €.
Prenez contact avec Christophe MONTANIER (06-10-23-51-22) pour plus d'informations sur cette maison. Maisons Balency Saint-Maur-des-Fossés vous accompagne dans toutes vos démarches et à toutes les étapes de l'achat.
Annonce proposée par un Agent Commercial Partenaire.
Mentions légales
Terrain proposé par un partenaire foncier selon disponibilités et autorisation de publicité au prix de 795 000 €. Hors droit d'enregistrement et frais de notaire. Terrain + Maison proposés au prix de 365 000 € (Hors branchements et raccordements, papiers peints, peintures, revêtement de sol dans les chambres. Tarif modifiable sans préavis). Etiquette énergie : A. Différents modèles disponibles pour ce terrain. Assurances et garanties du constructeur (RC professionnelle, décennale, dommage ouvrage, garantie de remboursement de l'acompte, livraison à prix et délai convenu) : https://www.maisons-balency.fr/informations-legales/. HEXAOM Services est enregistré auprès de l'ORIAS en tant que Courtier en financement, Niveau 1, sous le numéro 14001345.Agence Maisons Balency de Saint-Maur-des-Fossés (94100)
- Téléphone :
- 01 87 36 85 37
- Adressse :
- 12 avenue de la république
94100 Saint-Maur-des-Fossés, France
