Maison neuve à
Louveciennes
(78430) Référence :
AM2356198_1
Prix du projet : Maison avec Terrain
prix 1 080 000 €
- 7 pièces
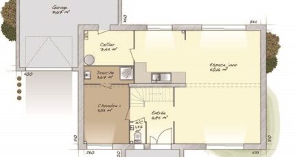
- 4 chambres
- Surface maison 160 m2
VENTE d'une maison F7 (160 m²) à Louveciennes
PROCHE DE PARIS - MAISON 7 PIÈCES NEUVE
À 865 m du Transilien L (35 min de Paris), ayez le coup de coeur pour cette maison de 7 pièces de 160 m² et de 1 035 m² de terrain à Louveciennes (78430).
Cette maison compte 2 niveaux. Elle dispose de quatre chambres, d'une cuisine et de deux salles de bains. La maison est neuve.
Des établissements scolaires primaires sont implantés à moins de 10 minutes à pied, tout comme une crèche. Côté transports en commun, il y a la gare Louveciennes juste à côté. On trouve une bibliothèque, deux commerces, deux boulangeries, une boucherie-charcuterie, un bureau de poste et une épicerie à proximité de la maison.
Son prix de vente est de 1 080 000 €.
Contactez notre agence (MONTANIER Aurelien : 06-24-66-88-34) pour toute information sur ce bien. Maisons Balency Saint-Maur-des-Fossés est là pour vous accompagner dans tous vos projets immobiliers.
Annonce proposée par un Agent Commercial Partenaire.
Mentions légales
Terrain proposé par un partenaire foncier selon disponibilités et autorisation de publicité au prix de 795 000 €. Hors droit d'enregistrement et frais de notaire. Maison proposée, avec un contrat de construction de maison individuelle, dans le cadre de la loi du 19/12/1990, au prix de 285 000 € (Hors branchements et raccordements, papiers peints, peintures, revêtement de sol dans les chambres, qui sont chiffrés dans les travaux qui restent à charge du client. Tarif modifiable sans préavis). Étiquette énergie : A. Différents modèles disponibles pour ce terrain. Assurances et garanties du constructeur comprises (RC professionnelle, décennale, dommage ouvrage).Agence Maisons Balency de Saint-Maur-des-Fossés (94100)
- Téléphone :
- 01 87 36 85 37
- Adressse :
- 12 avenue de la république
94100 Saint-Maur-des-Fossés, France
