Maison neuve à
Louviers (27400) Référence : KXA2334212_1

Prix du projet : Maison avec Terrain

prix 412 000 €

  • 7 pièces
  • 4 chambres
  • Surface maison 160 m2

VENTE : maison F7 (160 m²) à Louviers
MAISON 7 PIÈCES NEUVE - PROCHE DE ROUEN
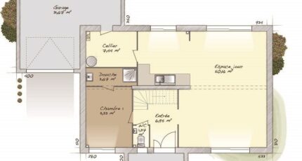
À 25 km de Rouen, Maisons Balency Boos vous propose en vente à Louviers (27400), cette maison de 7 pièces de 160 m². Elle propose quatre chambres, une cuisine et deux salles de bains.
Le terrain du bien est de 465 m².
Il s'agit d'une maison de 2 niveaux. Elle est neuve.
Des établissements scolaires de tous types (de la maternelle au lycée) se trouvent à moins de 10 minutes à pied, tout comme deux crèches. Côté transports, il y a les gares Saint-Pierre-du-Vauvray et Val-de-Reuil à moins de 10 minutes en voiture. Les autoroutes A154 et A13 et la nationale N154 sont accessibles à moins de 4 km. On trouve un bassin de natation, un bowling, des commerces, des boulangeries, trois supermarchés, deux poissonneries et des boucheries-charcuteries dans les environs. Le marché Centre-Ville anime les environs tous les samedis matin.
Son prix de vente est de 412 000 €.
Contactez notre agence (Kévin XAVIER ALVES : 06-58-91-13-87) pour toute question sur cette maison ou sur les démarches à suivre. Faites de vos projets immobiliers une réalité avec Maisons Balency Boos.

Annonce proposée par un Agent Commercial Partenaire.

Mentions légales

Terrain proposé par un partenaire foncier selon disponibilités et autorisation de publicité au prix de 90 000 €. Hors droit d'enregistrement et frais de notaire. Terrain + Maison proposés au prix de 322 000 € (Hors branchements et raccordements, papiers peints, peintures, revêtement de sol dans les chambres. Tarif modifiable sans préavis). Etiquette énergie : A. Différents modèles disponibles pour ce terrain. Assurances et garanties du constructeur (RC professionnelle, décennale, dommage ouvrage, garantie de remboursement de l'acompte, livraison à prix et délai convenu) : https://www.maisons-balency.fr/informations-legales/. HEXAOM Services est enregistré auprès de l'ORIAS en tant que Courtier en financement, Niveau 1, sous le numéro 14001345.

Contactez l'agence de Boos

02 35 80 66 66

    * Champs obligatoires

    Vos informations sont traitées par HEXAOM et transmises à un conseiller commercial qui vous contactera afin de répondre à votre demande. Les plans et images présentés sur notre site sont la propriété d’HEXAOM et ne peuvent pas être reproduits sans son accord. Pour retrouver notre politique de protection des données personnelles et exercer vos droits conformément à la « loi informatique et liberté » cliquez-ici.