Maison neuve à
Louviers (27400) Référence : KXA2387867_3

Prix du projet : Maison avec Terrain

prix 287 900 €

  • 9 pièces
  • 5 chambres
  • Surface maison 124 m2

Maison de 9 pièces (124 m²) en vente à Louviers
CENTRE-VILLE - MAISON 9 PIÈCES NEUVE
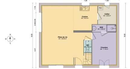
À vendre à deux pas de Rouen, à Louviers (27400), en centre-ville, nous sommes heureux de vous proposer cette maison de 9 pièces de 124 m² et de 466 m² de terrain. Elle comporte cinq chambres, une cuisine et trois salles de bains.
Cette maison possède 2 niveaux. Elle est neuve.
Des établissements scolaires de tous niveaux (de la maternelle au lycée) sont implantés à moins de 10 minutes à pied, tout comme deux crèches. Côté transports en commun, il y a les gares Saint-Pierre-du-Vauvray et Val-de-Reuil à moins de 10 minutes en voiture. Les autoroutes A154 et A13 et la nationale N154 sont accessibles à moins de 4 km. On trouve un bassin de natation, un bowling, des commerces, des boulangeries, trois supermarchés, des boucheries-charcuteries et des épiceries dans les environs. Le marché Centre-Ville anime les environs tous les samedis matin.
Elle est à vendre pour la somme de 287 900 €.
Contactez Kévin XAVIER ALVES (06-58-91-13-87) pour toute information sur la maison, sur les démarches à suivre ou sur les modalités de vente. Maisons Balency Boos est là pour vous accompagner à toutes les étapes de votre projet.

Annonce proposée par un Agent Commercial Partenaire.

Mentions légales

Terrain proposé par un partenaire foncier selon disponibilités et autorisation de publicité au prix de 90 000 €. Hors droit d'enregistrement et frais de notaire. Terrain + Maison proposés au prix de 197 900 € (Hors branchements et raccordements, papiers peints, peintures, revêtement de sol dans les chambres. Tarif modifiable sans préavis). Etiquette énergie : A. Différents modèles disponibles pour ce terrain. Assurances et garanties du constructeur (RC professionnelle, décennale, dommage ouvrage, garantie de remboursement de l'acompte, livraison à prix et délai convenu) : https://www.maisons-balency.fr/informations-legales/. HEXAOM Services est enregistré auprès de l'ORIAS en tant que Courtier en financement, Niveau 1, sous le numéro 14001345.

Contactez l'agence de Boos

02 35 80 66 66

    * Champs obligatoires

    Vos informations sont traitées par HEXAOM et transmises à un conseiller commercial qui vous contactera afin de répondre à votre demande. Les plans et images présentés sur notre site sont la propriété d’HEXAOM et ne peuvent pas être reproduits sans son accord. Pour retrouver notre politique de protection des données personnelles et exercer vos droits conformément à la « loi informatique et liberté » cliquez-ici.