Maison neuve à
Luzarches
(95270) Référence :
MU2254355_4
Prix du projet : Maison avec Terrain
prix 349 900 €
- 5 pièces
- 3 chambres
- Surface maison 90 m2
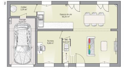
VENTE : maison de 5 pièces (90 m²) à Luzarches
IDÉALEMENT SITUÉE - MAISON 5 PIÈCES NEUVE
À quelques minutes de la gare de Viarmes, nous vous proposons en vente, idéalement située dans Luzarches (95270), cette maison de 5 pièces de 90 m².
Cette maison compte 2 niveaux. Elle est composée de trois chambres, d'une cuisine et d'une salle de bains. Cette maison est neuve.
Le terrain de la propriété est de 418 m².
La maison se situe dans un secteur convoité. On trouve l'École Élémentaire Privée les Petites Souris de Montessori et le Collège Blaise Pascal à moins de 10 minutes à pied. Niveau transports, il y a la gare Viarmes dans les environs, plaçant Paris à 40 min de la maison en transilien. Il y a trois commerces et une boulangerie à quelques minutes du bien.
Son prix de vente est de 349 900 €.
Contactez notre agence (Mylann URBANSKY : 06-23-32-28-23) pour obtenir de plus amples informations sur cette maison ou sur les démarches à suivre.
Annonce proposée par un Agent Commercial Partenaire.
Mentions légales
Terrain proposé par un partenaire foncier selon disponibilités et autorisation de publicité au prix de 169 315 €. Hors droit d'enregistrement et frais de notaire. Maison proposée, avec un contrat de construction de maison individuelle, dans le cadre de la loi du 19/12/1990, au prix de 180 585 € (Hors branchements et raccordements, papiers peints, peintures, revêtement de sol dans les chambres, qui sont chiffrés dans les travaux qui restent à charge du client. Tarif modifiable sans préavis). Étiquette énergie : A. Différents modèles disponibles pour ce terrain. Assurances et garanties du constructeur comprises (RC professionnelle, décennale, dommage ouvrage).Agence Maisons Balency de Baillet-en-France (95560)
- Téléphone :
- 01 34 46 05 23
- Adressse :
- 81 rue de Paris
95560 Baillet-en-France, France
