Maison neuve à
Luzarches
(95270) Référence :
MU2255072_10
Prix du projet : Maison avec Terrain
prix 294 000 €
- 5 pièces
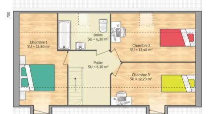
- 3 chambres
- Surface maison 80 m2
Maison T5 (80 m²) en vente à Luzarches
IDÉALEMENT SITUÉE - MAISON 5 PIÈCES NEUVE
À côté de la gare de Viarmes, nous vous proposons à vendre, idéalement située dans Luzarches (95270), cette maison de 5 pièces de 80 m² et de 402 m² de terrain.
Il s'agit d'une maison de 2 niveaux. Son intérieur est composé de trois chambres, d'une cuisine et d'une salle de bains. La maison est neuve.
Cette maison est située dans un quartier attractif. On trouve l'École Élémentaire Privée les Petites Souris de Montessori et le Collège Blaise Pascal à moins de 10 minutes à pied. Niveau transports en commun, il y a la gare Viarmes à proximité, plaçant Paris à 40 min de la maison en transilien. Il y a trois commerces et une boulangerie à quelques minutes.
Son prix de vente est de 294 000 €.
N'hésitez pas à prendre contact avec notre agence (Mylann URBANSKY : 06-23-32-28-23) pour toute information sur cette propriété, sur les modalités de vente ou sur les démarches à suivre. Maisons Balency Pierrelaye est là pour vous accompagner à toutes les étapes de votre projet.
Annonce proposée par un Agent Commercial Partenaire.
Mentions légales
Terrain proposé par un partenaire foncier selon disponibilités et autorisation de publicité au prix de 144 167 €. Hors droit d'enregistrement et frais de notaire. Maison proposée, avec un contrat de construction de maison individuelle, dans le cadre de la loi du 19/12/1990, au prix de 149 833 € (Hors branchements et raccordements, papiers peints, peintures, revêtement de sol dans les chambres, qui sont chiffrés dans les travaux qui restent à charge du client. Tarif modifiable sans préavis). Étiquette énergie : A. Différents modèles disponibles pour ce terrain. Assurances et garanties du constructeur comprises (RC professionnelle, décennale, dommage ouvrage).Agence Maisons Balency de Baillet-en-France (95560)
- Téléphone :
- 01 34 46 05 23
- Adressse :
- 81 rue de Paris
95560 Baillet-en-France, France
