Maison neuve à
Luzarches
(95270) Référence :
CT2415199_1
Prix du projet : Maison avec Terrain
prix 349 960 €
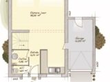
- 5 pièces
- 3 chambres
- Surface maison 90 m2
Luzarches : maison F5 (90 m²) en vente
EMPLACEMENT PRIVILÉGIÉ - MAISON 5 PIÈCES NEUVE
À côté de la gare de Viarmes, Maisons Balency Baillet-en-France vous propose cette maison de 5 pièces de 90 m² et de 358 m² de terrain à vendre bénéficiant d'un emplacement privilégié dans Luzarches (95270).
Cette maison possède 2 niveaux. Elle comporte trois chambres, une cuisine et une salle de bains. Cette maison est neuve.
La maison se situe dans un secteur prisé. Il y a l'École Élémentaire Privée les Petites Souris de Montessori et le Collège Blaise Pascal à moins de 10 minutes à pied. Niveau transports en commun, on trouve la gare Viarmes à proximité, positionnant la maison à 40 min de Paris en transilien. Il y a trois commerces et une boulangerie dans les environs.
Son prix de vente est de 349 960 €.
Prenez contact avec Christophe TALAMONI (06-49-55-08-27) pour plus de renseignements sur ce bien ou sur les modalités de vente.
Annonce proposée par un Agent Commercial Partenaire.
Mentions légales
Terrain proposé par un partenaire foncier selon disponibilités et autorisation de publicité au prix de 162 000 €. Hors droit d'enregistrement et frais de notaire. Terrain + Maison proposés au prix de 349 960 € (Hors branchements et raccordements, papiers peints, peintures, revêtement de sol dans les chambres. Tarif modifiable sans préavis). Etiquette énergie : A. Différents modèles disponibles pour ce terrain. Assurances et garanties du constructeur (RC professionnelle, décennale, dommage ouvrage, garantie de remboursement de l'acompte, livraison à prix et délai convenu) : https://www.maisons-balency.fr/informations-legales/. HEXAOM Services est enregistré auprès de l'ORIAS en tant que Courtier en financement, Niveau 1, sous le numéro 14001345.Agence Maisons Balency de Baillet-en-France (95560)
- Téléphone :
- 01 34 46 05 23
- Adressse :
- 81 rue de Paris
95560 Baillet-en-France, France
