Maison neuve à
Luzarches
(95270) Référence :
CT2415199_3
Prix du projet : Maison avec Terrain
prix 394 700 €
- 6 pièces
- 5 chambres
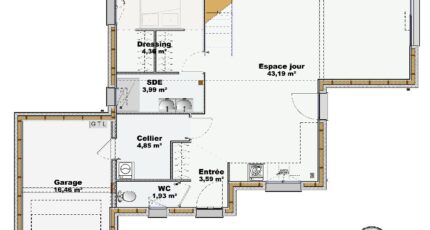
- Surface maison 120 m2
VENTE : maison de 6 pièces (120 m²) à Luzarches
EMPLACEMENT PRIVILÉGIÉ - MAISON 6 PIÈCES NEUVE
À vendre : à 210 m de la gare de Viarmes, nous sommes heureux de vous proposer, bénéficiant d'un emplacement privilégié dans Luzarches (95270), cette maison de 6 pièces de 120 m² et de 358 m² de terrain. Son intérieur offre cinq chambres, une cuisine et deux salles de bains.
Cette maison comporte 2 niveaux. Elle est neuve.
Cette maison se trouve dans un quartier attractif. Il y a l'École Élémentaire Privée les Petites Souris de Montessori et le Collège Blaise Pascal à moins de 10 minutes à pied. Niveau transports, on trouve la gare Viarmes à quelques pas du bien, positionnant Paris à 40 min de la maison en transilien. Il y a trois commerces et une boulangerie dans les environs.
Son prix de vente est de 394 700 €.
Contactez notre agence (Christophe TALAMONI : 06-49-55-08-27) pour toute question sur ce bien ou sur les démarches à suivre.
Annonce proposée par un Agent Commercial Partenaire.
Mentions légales
Terrain proposé par un partenaire foncier selon disponibilités et autorisation de publicité au prix de 162 000 €. Hors droit d'enregistrement et frais de notaire. Terrain + Maison proposés au prix de 394 700 € (Hors branchements et raccordements, papiers peints, peintures, revêtement de sol dans les chambres. Tarif modifiable sans préavis). Etiquette énergie : A. Différents modèles disponibles pour ce terrain. Assurances et garanties du constructeur (RC professionnelle, décennale, dommage ouvrage, garantie de remboursement de l'acompte, livraison à prix et délai convenu) : https://www.maisons-balency.fr/informations-legales/. HEXAOM Services est enregistré auprès de l'ORIAS en tant que Courtier en financement, Niveau 1, sous le numéro 14001345.Agence Maisons Balency de Baillet-en-France (95560)
- Téléphone :
- 01 34 46 05 23
- Adressse :
- 81 rue de Paris
95560 Baillet-en-France, France
