Maison neuve à
Lyons-la-Forêt (27480) Référence : EL2320340_6

Prix du projet : Maison avec Terrain

prix 326 900 €

  • 5 pièces
  • 3 chambres
  • Surface maison 120 m2

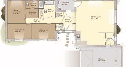
VENTE : maison de 5 pièces (120 m²) à Lyons-la-Forêt
IDÉALEMENT SITUÉE - MAISON 5 PIÈCES NEUVE
En vente : à quelques kilomètres de Rouen, Maisons Balency Boos vous présente, idéalement située dans Lyons-la-Forêt (27480), cette maison de 5 pièces de plain-pied de 120 m².
Conçue de plain-pied, elle propose trois chambres, une cuisine et deux salles de bains. La maison est neuve.
Le terrain de la propriété est de 1 200 m².
La maison se trouve dans un quartier convoité. Il y a l'École Primaire Maurice Ravel à moins de 10 minutes à pied. On trouve un tennis, un bassin de natation, quatre commerces et une boulangerie à quelques minutes du bien.
Elle est à vendre pour la somme de 326 900 €.
N'hésitez pas à prendre contact avec notre agence (Aurélien LEOVANT : 02-35-80-66-66) pour plus de renseignements sur la maison ou sur les modalités de vente. Faites de vos projets immobiliers une réalité avec Maisons Balency Boos.

Annonce proposée par un Agent Commercial Partenaire.

Mentions légales

Terrain proposé par un partenaire foncier selon disponibilités et autorisation de publicité au prix de 55 000 €. Hors droit d'enregistrement et frais de notaire. Terrain + Maison proposés au prix de 326 900 € (Hors branchements et raccordements, papiers peints, peintures, revêtement de sol dans les chambres. Tarif modifiable sans préavis). Etiquette énergie : A. Différents modèles disponibles pour ce terrain. Assurances et garanties du constructeur (RC professionnelle, décennale, dommage ouvrage, garantie de remboursement de l'acompte, livraison à prix et délai convenu) : https://www.maisons-balency.fr/informations-legales/. HEXAOM Services est enregistré auprès de l'ORIAS en tant que Courtier en financement, Niveau 1, sous le numéro 14001345.

Contactez l'agence de Boos

02 35 80 66 66

    * Champs obligatoires

    Vos informations sont traitées par HEXAOM et transmises à un conseiller commercial qui vous contactera afin de répondre à votre demande. Les plans et images présentés sur notre site sont la propriété d’HEXAOM et ne peuvent pas être reproduits sans son accord. Pour retrouver notre politique de protection des données personnelles et exercer vos droits conformément à la « loi informatique et liberté » cliquez-ici.