Maison neuve à
Mandeville (27370) Référence : KG2418855_6

Prix du projet : Maison avec Terrain

prix 150 000 €

  • 4 pièces
  • 2 chambres
  • Surface maison 50 m2

Mandeville : maison T4 (50 m²) à vendre
MAISON 4 PIÈCES NEUVE - PROCHE DE ROUEN
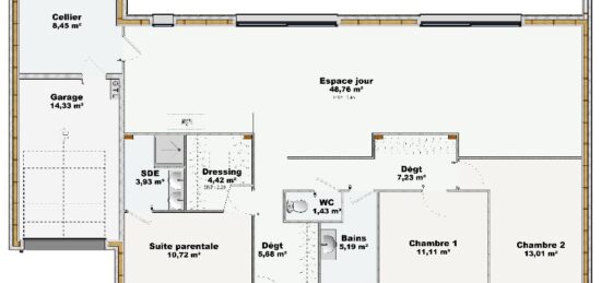
En vente à 26 km de Rouen, nous sommes heureux de vous présenter cette maison de 4 pièces de plain-pied de 50 m² et de 1 100 m² de terrain à Mandeville (27370). Elle comporte deux chambres, une cuisine et une salle de bains.
La maison est neuve.
Tous les types d'établissements scolaires sont implantés à moins de 10 minutes en voiture, tout comme quatre crèches à moins de 10 minutes à pied. Niveau transports en commun, il y a la gare Elbeuf-Saint-Aubin à moins de 10 minutes en voiture. On trouve des bibliothèques, des tennis, deux bassins de natation, des commerces, des boulangeries, des supermarchés, des boucheries-charcuteries et des bureaux de poste à quelques minutes à peine. Enfin, 2 marchés animent les environs.
Son prix de vente est de 150 000 €.
Prenez contact avec notre agence (Karen GOHIER : 06 71 52 61 13) pour obtenir de plus amples informations sur cette maison, sur les modalités de vente ou sur les démarches à suivre. Maisons Balency Louviers est là pour vous accompagner dans tous vos projets immobiliers.

Annonce proposée par un Agent Commercial Partenaire.

Mentions légales

Terrain proposé par un partenaire foncier selon disponibilités et autorisation de publicité au prix de 45 000 €. Hors droit d'enregistrement et frais de notaire. Terrain + Maison proposés au prix de 150 000 € (Hors branchements et raccordements, papiers peints, peintures, revêtement de sol dans les chambres. Tarif modifiable sans préavis). Etiquette énergie : A. Différents modèles disponibles pour ce terrain. Assurances et garanties du constructeur (RC professionnelle, décennale, dommage ouvrage, garantie de remboursement de l'acompte, livraison à prix et délai convenu) : https://www.maisons-balency.fr/informations-legales/. HEXAOM Services est enregistré auprès de l'ORIAS en tant que Courtier en financement, Niveau 1, sous le numéro 14001345.

Contactez l'agence de Louviers

02 32 51 43 53

    * Champs obligatoires

    Vos informations sont traitées par HEXAOM et transmises à un conseiller commercial qui vous contactera afin de répondre à votre demande. Les plans et images présentés sur notre site sont la propriété d’HEXAOM et ne peuvent pas être reproduits sans son accord. Pour retrouver notre politique de protection des données personnelles et exercer vos droits conformément à la « loi informatique et liberté » cliquez-ici.