Maison neuve à
Mandres-les-Roses
(94520) Référence :
AM2253755_2
Prix du projet : Maison avec Terrain
prix 515 000 €
- 7 pièces
- 4 chambres
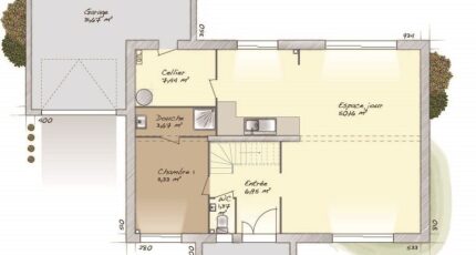
- Surface maison 160 m2
VENTE : maison de 7 pièces (160 m²) à Mandres-les-Roses
PROCHE DE PARIS - MAISON 7 PIÈCES NEUVE
À vendre : à quelques minutes du RER D (station Boussy-Saint-Antoine, 30 min de Paris), à Mandres-les-Roses (94520), votre agence Maisons Balency Saint-Maur-des-Fossés est ravie de vous proposer cette maison de 7 pièces de 160 m².
Cette maison comporte 2 niveaux. Elle comporte quatre chambres, une cuisine et deux salles de bains. La maison est neuve.
Le terrain de la propriété s'étend sur 489 m².
Il y a le Collège Simone Veil, l'École Maternelle la Ferme de Monsieur et l'École Élémentaire d'Application les Charmilles à moins de 10 minutes à pied. Côté transports en commun, on trouve le RER D, A et C ainsi que 11 gares à moins de 10 minutes en voiture. On trouve une bibliothèque, deux tennis, des commerces, trois boulangeries, un supermarché, quatre épiceries et une boucherie-charcuterie à proximité de la maison.
Son prix de vente est de 515 000 €.
Prenez contact avec Aurelien MONTANIER (tél : 06-24-66-88-34) pour toute information sur cette maison. Maisons Balency Saint-Maur-des-Fossés est là pour vous accompagner dans tous vos projets immobiliers.
Annonce proposée par un Agent Commercial Partenaire.
Mentions légales
Terrain proposé par un partenaire foncier selon disponibilités et autorisation de publicité au prix de 199 000 €. Hors droit d'enregistrement et frais de notaire. Maison proposée, avec un contrat de construction de maison individuelle, dans le cadre de la loi du 19/12/1990, au prix de 316 000 € (Hors branchements et raccordements, papiers peints, peintures, revêtement de sol dans les chambres, qui sont chiffrés dans les travaux qui restent à charge du client. Tarif modifiable sans préavis). Étiquette énergie : A. Différents modèles disponibles pour ce terrain. Assurances et garanties du constructeur comprises (RC professionnelle, décennale, dommage ouvrage).Agence Maisons Balency de Saint-Maur-des-Fossés (94100)
- Téléphone :
- 01 87 36 85 37
- Adressse :
- 12 avenue de la république
94100 Saint-Maur-des-Fossés, France
