Maison neuve à
Mantes-la-Ville (78711) Référence : AHT2362002_1

Prix du projet : Maison avec Terrain

prix 328 900 €

  • 4 pièces
  • 3 chambres
  • Surface maison 94 m2

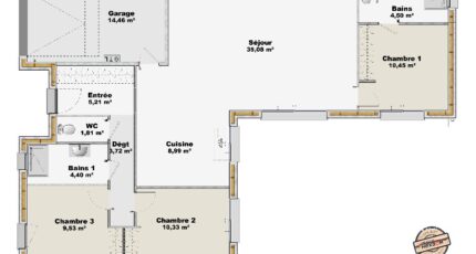
VENTE d'une maison T4 (94 m²) à Mantes-la-Ville
IDÉALEMENT SITUÉE - MAISON 4 PIÈCES NEUVE
En vente : au pied du Transilien J (gare de Mantes-la-Jolie, 35 min de Paris), ayez le coup de coeur pour cette maison de 4 pièces de plain-pied de 94 m² et de 227 m² de terrain, idéalement située dans Mantes-la-Ville (78711). Elle est composée de trois chambres, d'une cuisine et de deux salles de bains.
Cette maison est neuve.
La propriété se situe dans un secteur convoité. Il y a plusieurs écoles (maternelle, élémentaire et collège) à moins de 10 minutes à pied. Niveau transports, on trouve sept gares à moins de 10 minutes en voiture. Il y a une bibliothèque, des boulangeries, des commerces, un supermarché, deux boucheries-charcuteries et une supérette à quelques minutes. Ne manquez pas le marché Place du marché chaque jeudi matin.
Elle est à vendre pour la somme de 328 900 €.
N'hésitez pas à prendre contact avec notre agence (Azzedine HAMADOU TCHOFO : 07-51-44-47-96) pour plus de renseignements sur la maison, sur les démarches à suivre ou sur les modalités de vente.

Annonce proposée par un Agent Commercial Partenaire.

Mentions légales

Terrain proposé par un partenaire foncier selon disponibilités et autorisation de publicité au prix de 140 900 €. Hors droit d'enregistrement et frais de notaire. Terrain + Maison proposés au prix de 328 900 € (Hors branchements et raccordements, papiers peints, peintures, revêtement de sol dans les chambres. Tarif modifiable sans préavis). Etiquette énergie : A. Différents modèles disponibles pour ce terrain. Assurances et garanties du constructeur (RC professionnelle, décennale, dommage ouvrage, garantie de remboursement de l'acompte, livraison à prix et délai convenu) : https://www.maisons-balency.fr/informations-legales/. HEXAOM Services est enregistré auprès de l'ORIAS en tant que Courtier en financement, Niveau 1, sous le numéro 14001345.

Contactez l'agence de Louviers

02 32 51 43 53

    * Champs obligatoires

    Vos informations sont traitées par HEXAOM et transmises à un conseiller commercial qui vous contactera afin de répondre à votre demande. Les plans et images présentés sur notre site sont la propriété d’HEXAOM et ne peuvent pas être reproduits sans son accord. Pour retrouver notre politique de protection des données personnelles et exercer vos droits conformément à la « loi informatique et liberté » cliquez-ici.