Maison neuve à
Marcilly-la-Campagne (27320) Référence : KD2379272_1

Prix du projet : Maison avec Terrain

prix 321 410 €

  • 5 pièces
  • 3 chambres
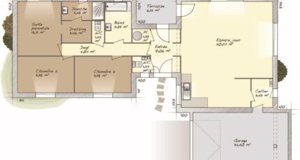
  • Surface maison 120 m2

Marcilly-la-Campagne : maison T5 (120 m²) à vendre
MAISON 5 PIÈCES NEUVE - PROCHE D'ÉVREUX
À vendre : à quelques kilomètres d'Évreux, à Marcilly-la-Campagne (27320), votre agence Maisons Balency Gravigny est heureuse de vous proposer cette maison de 5 pièces de plain-pied de 120 m² et de 1 056 m² de terrain. Son intérieur propose trois chambres, une cuisine et deux salles de bains.
Cette maison est neuve.
On trouve une école primaire dans le quartier. Niveau transports en commun, il y a la gare Nonancourt à moins de 10 minutes en voiture. Les nationales N154 et N12 sont accessibles à moins de 8 km.
Elle est à vendre pour la somme de 321 410 €.
Contactez notre constructeur (Karen DELELIS : 07-49-97-72-93) pour plus de renseignements sur cette maison. Maisons Balency Gravigny vous accompagne dans tous vos projets immobiliers et à toutes les étapes de votre projet.

Annonce proposée par un Agent Commercial Partenaire.

Mentions légales

Terrain proposé par un partenaire foncier selon disponibilités et autorisation de publicité au prix de 50 000 €. Hors droit d'enregistrement et frais de notaire. Terrain + Maison proposés au prix de 321 410 € (Hors branchements et raccordements, papiers peints, peintures, revêtement de sol dans les chambres. Tarif modifiable sans préavis). Etiquette énergie : A. Différents modèles disponibles pour ce terrain. Assurances et garanties du constructeur (RC professionnelle, décennale, dommage ouvrage, garantie de remboursement de l'acompte, livraison à prix et délai convenu) : https://www.maisons-balency.fr/informations-legales/. HEXAOM Services est enregistré auprès de l'ORIAS en tant que Courtier en financement, Niveau 1, sous le numéro 14001345.

Contactez l'agence de Gravigny

02 32 51 49 29

    * Champs obligatoires

    Vos informations sont traitées par HEXAOM et transmises à un conseiller commercial qui vous contactera afin de répondre à votre demande. Les plans et images présentés sur notre site sont la propriété d’HEXAOM et ne peuvent pas être reproduits sans son accord. Pour retrouver notre politique de protection des données personnelles et exercer vos droits conformément à la « loi informatique et liberté » cliquez-ici.