Maison neuve à
Marines
(95640) Référence :
CT2352823_1
Prix du projet : Maison avec Terrain
prix 339 800 €
- 8 pièces
- 5 chambres
- Surface maison 145 m2
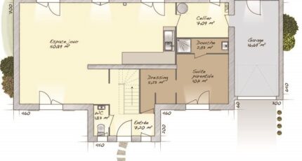
Maison F8 (145 m²) en vente à Marines
IDÉALEMENT SITUÉE - MAISON 8 PIÈCES NEUVE
À vendre : à deux pas du Transilien J (gare de Santeuil-Le Perchay, 55 min de Paris), venez découvrir, idéalement située dans Marines (95640), cette maison de 8 pièces de 145 m² et de 605 m² de terrain avec vue sur espace vert. Elle est composée de cinq chambres, d'une cuisine et de trois salles de bains.
Il s'agit d'une maison de 2 niveaux. Elle est neuve.
Cette maison se trouve dans un quartier convoité. L'École Élémentaire Paul Cézanne, l'École Maternelle les Murgers et le Collège des Hautiers sont implantés à moins de 10 minutes à pied. Niveau transports, on trouve six gares à moins de 10 minutes en voiture. Il y a une bibliothèque, des commerces, deux boulangeries, un supermarché, un bureau de poste et deux épiceries dans les environs.
Elle est proposée à l'achat pour 339 800 €.
N'hésitez pas à prendre contact avec notre agence (TALAMONI Christophe : 06-49-55-08-27) pour toute question sur la maison ou sur les démarches à suivre. Faites de vos projets immobiliers une réalité avec Maisons Balency Baillet-en-France.
Annonce proposée par un Agent Commercial Partenaire.
Mentions légales
Terrain proposé par un partenaire foncier selon disponibilités et autorisation de publicité au prix de 92 900 €. Hors droit d'enregistrement et frais de notaire. Maison proposée, avec un contrat de construction de maison individuelle, dans le cadre de la loi du 19/12/1990, au prix de 246 900 € (Hors branchements et raccordements, papiers peints, peintures, revêtement de sol dans les chambres, qui sont chiffrés dans les travaux qui restent à charge du client. Tarif modifiable sans préavis). Étiquette énergie : A. Différents modèles disponibles pour ce terrain. Assurances et garanties du constructeur comprises (RC professionnelle, décennale, dommage ouvrage).Agence Maisons Balency de Baillet-en-France (95560)
- Téléphone :
- 01 34 46 05 23
- Adressse :
- 81 rue de Paris
95560 Baillet-en-France, France
