Maison neuve à
Marolles-en-Brie
(94440) Référence :
CM2334117_2
Prix du projet : Maison avec Terrain
prix 621 000 €
- 5 pièces
- 3 chambres
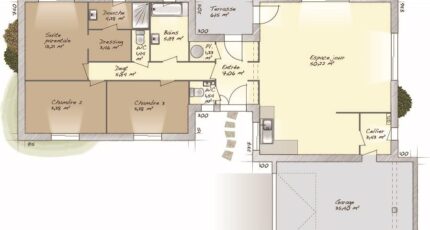
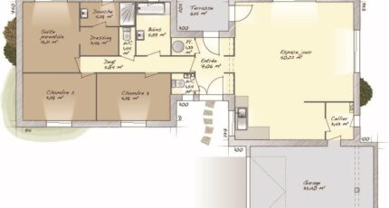
- Surface maison 120 m2
VENTE d'une maison T5 (120 m²) à Marolles-en-Brie
MAISON 5 PIÈCES NEUVE - PROCHE DE PARIS
À vendre : à deux pas de la station Boissy-Saint-Léger (Paris à 20 min par le RER A), notre agence Maisons Balency Saint-Maur-des-Fossés est heureuse de vous proposer à Marolles-en-Brie (94440), cette maison de 5 pièces de plain-pied de 120 m².
Son intérieur inclut trois chambres, une cuisine et deux salles de bains. La maison est neuve.
Le terrain de la propriété est de 550 m².
Il y a l'École Maternelle les Buissons, l'École Élémentaire les Buissons et l'École Primaire la Forêt à moins de 10 minutes à pied. Côté transports, on trouve les lignes A, D, C et E du RER ainsi que 14 gares à moins de 10 minutes en voiture. Il y a une bibliothèque, un tennis, quatre commerces, une boulangerie, un supermarché, un bureau de poste et deux boucheries-charcuteries à quelques minutes du logement.
Son prix de vente est de 621 000 €.
N'hésitez pas à prendre contact avec Christophe MONTANIER (tél : 06-10-23-51-22) pour toute information sur cette maison. Maisons Balency Saint-Maur-des-Fossés vous accompagne dans tous vos projets immobiliers et à toutes les étapes de votre projet.
Annonce proposée par un Agent Commercial Partenaire.
Mentions légales
Terrain proposé par un partenaire foncier selon disponibilités et autorisation de publicité au prix de 299 000 €. Hors droit d'enregistrement et frais de notaire. Terrain + Maison proposés au prix de 322 000 € (Hors branchements et raccordements, papiers peints, peintures, revêtement de sol dans les chambres. Tarif modifiable sans préavis). Etiquette énergie : A. Différents modèles disponibles pour ce terrain. Assurances et garanties du constructeur (RC professionnelle, décennale, dommage ouvrage, garantie de remboursement de l'acompte, livraison à prix et délai convenu) : https://www.maisons-balency.fr/informations-legales/. HEXAOM Services est enregistré auprès de l'ORIAS en tant que Courtier en financement, Niveau 1, sous le numéro 14001345.Agence Maisons Balency de Saint-Maur-des-Fossés (94100)
- Téléphone :
- 01 87 36 85 37
- Adressse :
- 12 avenue de la république
94100 Saint-Maur-des-Fossés, France
