Maison neuve à
Martainville-Épreville (76116) Référence : SEMA9019_5

Prix du projet : Maison avec Terrain

prix 345 000 €

  • 5 pièces
  • 3 chambres
  • Surface maison 120 m2

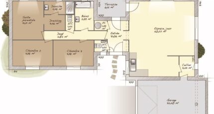
VENTE : maison de 5 pièces (120 m²) à Martainville-Épreville
PROCHE DE ROUEN - MAISON 5 PIÈCES NEUVE
À deux pas de Rouen, Maisons Balency Boos vous présente en vente à Martainville-Épreville (76116), cette maison de 5 pièces de plain-pied de 120 m² et de 1 000 m² de terrain.
Son intérieur inclut trois chambres, une cuisine et deux salles de bains. Cette maison est neuve.
Une école élémentaire est implantée dans le quartier. Côté transports, il y a deux gares (Morgny-la-Pommeraye et Saint-Martin-du-Vivier) à moins de 10 minutes en voiture. Les autoroutes A28 et A150 et les nationales N28 et N338 sont accessibles à moins de 17 km. On trouve un bureau de poste à proximité de la maison.
Elle est à vendre pour la somme de 345 000 €.
Contactez notre agence (Sébastien MASSON : 06-23-38-14-17) pour toute information sur cette maison. Concrétisez vos projets immobiliers avec Maisons Balency Boos.

Annonce proposée par un Agent Commercial Partenaire.

Mentions légales

Terrain proposé par un partenaire foncier selon disponibilités et autorisation de publicité au prix de 65 000 €. Hors droit d'enregistrement et frais de notaire. Maison proposée, avec un contrat de construction de maison individuelle, dans le cadre de la loi du 19/12/1990, au prix de 280 000 € (Hors branchements et raccordements, papiers peints, peintures, revêtement de sol dans les chambres, qui sont chiffrés dans les travaux qui restent à charge du client. Tarif modifiable sans préavis). Étiquette énergie : A. Différents modèles disponibles pour ce terrain. Assurances et garanties du constructeur comprises (RC professionnelle, décennale, dommage ouvrage).

Contactez l'agence de Boos

02 35 80 66 66

    * Champs obligatoires

    Vos informations sont traitées par HEXAOM et transmises à un conseiller commercial qui vous contactera afin de répondre à votre demande. Les plans et images présentés sur notre site sont la propriété d’HEXAOM et ne peuvent pas être reproduits sans son accord. Pour retrouver notre politique de protection des données personnelles et exercer vos droits conformément à la « loi informatique et liberté » cliquez-ici.