Maison neuve à
Martainville-Épreville (76116) Référence : SEMA9019_6

Prix du projet : Maison avec Terrain

prix 445 000 €

  • 8 pièces
  • 5 chambres
  • Surface maison 200 m2

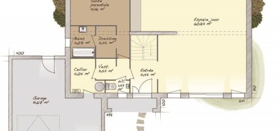
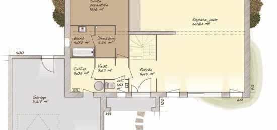
VENTE d'une maison de 8 pièces (200 m²) à Martainville-Épreville
MAISON 8 PIÈCES NEUVE - PROCHE DE ROUEN
À vendre : à 15 km de Rouen, à Martainville-Épreville (76116), ayez le coup de coeur pour cette maison de 8 pièces de 200 m².
Il s'agit d'une maison de 2 niveaux. Elle comporte cinq chambres, une cuisine et deux salles de bains. La maison est neuve.
Le terrain de la propriété s'étend sur 1 000 m².
Il y a une école élémentaire dans le quartier. Côté transports en commun, on trouve les gares Morgny-la-Pommeraye et Saint-Martin-du-Vivier à moins de 10 minutes en voiture. Les autoroutes A28 et A150 et les nationales N28 et N338 sont accessibles à moins de 17 km. Il y a un bureau de poste à proximité.
Elle est à vendre pour la somme de 445 000 €.
Contactez Sébastien MASSON (tél : 06-23-38-14-17) pour toute question sur la maison.

Annonce proposée par un Agent Commercial Partenaire.

Mentions légales

Terrain proposé par un partenaire foncier selon disponibilités et autorisation de publicité au prix de 65 000 €. Hors droit d'enregistrement et frais de notaire. Terrain + Maison proposés au prix de 445 000 € (Hors branchements et raccordements, papiers peints, peintures, revêtement de sol dans les chambres. Tarif modifiable sans préavis). Etiquette énergie : A. Différents modèles disponibles pour ce terrain. Assurances et garanties du constructeur (RC professionnelle, décennale, dommage ouvrage, garantie de remboursement de l'acompte, livraison à prix et délai convenu) : https://www.maisons-balency.fr/informations-legales/. HEXAOM Services est enregistré auprès de l'ORIAS en tant que Courtier en financement, Niveau 1, sous le numéro 14001345.

Contactez l'agence de Boos

02 35 80 66 66

    * Champs obligatoires

    Vos informations sont traitées par HEXAOM et transmises à un conseiller commercial qui vous contactera afin de répondre à votre demande. Les plans et images présentés sur notre site sont la propriété d’HEXAOM et ne peuvent pas être reproduits sans son accord. Pour retrouver notre politique de protection des données personnelles et exercer vos droits conformément à la « loi informatique et liberté » cliquez-ici.