Maison neuve à
Martainville-Épreville (76116) Référence : SEMA9019_7

Prix du projet : Maison avec Terrain

prix 399 000 €

  • 7 pièces
  • 5 chambres
  • Surface maison 170 m2

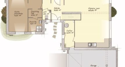
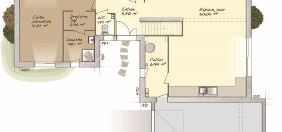
Martainville-Épreville : maison de 7 pièces (170 m²) à vendre
MAISON 7 PIÈCES NEUVE - PROCHE DE ROUEN
À vendre : localisée à deux pas de Rouen, à Martainville-Épreville (76116), Maisons Balency Boos vous présente cette maison de 7 pièces de plain-pied de 170 m² et de 1 000 m² de terrain. Conçue de plain-pied, elle dispose de cinq chambres, d'une cuisine et de trois salles de bains.
La maison est neuve.
Une école élémentaire est implantée dans le quartier. Côté transports en commun, il y a deux gares (Morgny-la-Pommeraye et Saint-Martin-du-Vivier) à moins de 10 minutes en voiture. Les autoroutes A28 et A150 et les nationales N28 et N338 sont accessibles à moins de 17 km. On trouve un bureau de poste à proximité.
Elle est proposée à l'achat pour 399 000 €.
Prenez contact avec Sébastien MASSON (06-23-38-14-17) pour obtenir de plus amples renseignements sur cette maison, sur les démarches à suivre ou sur les modalités de vente. Maisons Balency Boos est là pour vous accompagner dans tous vos projets immobiliers.

Annonce proposée par un Agent Commercial Partenaire.

Mentions légales

Terrain proposé par un partenaire foncier selon disponibilités et autorisation de publicité au prix de 65 000 €. Hors droit d'enregistrement et frais de notaire. Maison proposée, avec un contrat de construction de maison individuelle, dans le cadre de la loi du 19/12/1990, au prix de 334 000 € (Hors branchements et raccordements, papiers peints, peintures, revêtement de sol dans les chambres, qui sont chiffrés dans les travaux qui restent à charge du client. Tarif modifiable sans préavis). Étiquette énergie : A. Différents modèles disponibles pour ce terrain. Assurances et garanties du constructeur comprises (RC professionnelle, décennale, dommage ouvrage).

Contactez l'agence de Boos

02 35 80 66 66

    * Champs obligatoires

    Vos informations sont traitées par HEXAOM et transmises à un conseiller commercial qui vous contactera afin de répondre à votre demande. Les plans et images présentés sur notre site sont la propriété d’HEXAOM et ne peuvent pas être reproduits sans son accord. Pour retrouver notre politique de protection des données personnelles et exercer vos droits conformément à la « loi informatique et liberté » cliquez-ici.