Maison neuve à
Martot (27340) Référence : AL2296973_2

Prix du projet : Maison avec Terrain

prix 290 000 €

  • 5 pièces
  • 3 chambres
  • Surface maison 120 m2

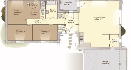
VENTE d'une maison de 5 pièces (120 m²) à Martot
IDÉALEMENT SITUÉE - MAISON 5 PIÈCES NEUVE
À vendre : située à 18 km de Rouen, votre agence Maisons Balency Boos est ravie de vous présenter, idéalement située dans Martot (27340), cette maison de 5 pièces de plain-pied de 120 m².
Elle comporte trois chambres, une cuisine et deux salles de bains. La maison est neuve.
Le terrain de la propriété s'étend sur 600 m².
Cette maison se trouve dans un quartier prisé. Une école primaire y est implantée. Côté transports en commun, il y a cinq gares à moins de 10 minutes en voiture. Les autoroutes A13 et A139 et la nationale N138 sont accessibles à moins de 7 km. On trouve un tennis et un commerce à quelques minutes à peine.
Elle est à vendre pour la somme de 290 000 €.
Prenez contact avec notre constructeur (BAZIZ Kamel : 07-80-36-63-82) pour toute question sur la maison. Faites de vos projets immobiliers une réalité avec Maisons Balency Boos.

Annonce proposée par un Agent Commercial Partenaire.

Mentions légales

Terrain proposé par un partenaire foncier selon disponibilités et autorisation de publicité au prix de 77 400 €. Hors droit d'enregistrement et frais de notaire. Terrain + Maison proposés au prix de 212 600 € (Hors branchements et raccordements, papiers peints, peintures, revêtement de sol dans les chambres. Tarif modifiable sans préavis). Etiquette énergie : A. Différents modèles disponibles pour ce terrain. Assurances et garanties du constructeur (RC professionnelle, décennale, dommage ouvrage, garantie de remboursement de l'acompte, livraison à prix et délai convenu) : https://www.maisons-balency.fr/informations-legales/. HEXAOM Services est enregistré auprès de l'ORIAS en tant que Courtier en financement, Niveau 1, sous le numéro 14001345.

Contactez l'agence de Boos

02 35 80 66 66

    * Champs obligatoires

    Vos informations sont traitées par HEXAOM et transmises à un conseiller commercial qui vous contactera afin de répondre à votre demande. Les plans et images présentés sur notre site sont la propriété d’HEXAOM et ne peuvent pas être reproduits sans son accord. Pour retrouver notre politique de protection des données personnelles et exercer vos droits conformément à la « loi informatique et liberté » cliquez-ici.