Maison neuve à
Martot (27340) Référence : AL2296973_3

Prix du projet : Maison avec Terrain

prix 350 000 €

  • 7 pièces
  • 5 chambres
  • Surface maison 170 m2

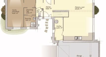
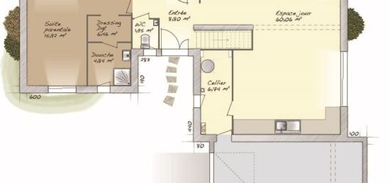
Martot : maison T7 (170 m²) en vente
IDÉALEMENT SITUÉE - MAISON 7 PIÈCES NEUVE
En vente à quelques kilomètres de Rouen, idéalement située dans Martot (27340), nous vous présentons cette maison de 7 pièces de plain-pied de 170 m². Son intérieur propose cinq chambres, une cuisine et trois salles de bains.
Le terrain du bien est de 600 m².
La maison est neuve.
La maison se trouve dans un quartier prisé. On y trouve une école primaire. Niveau transports en commun, il y a cinq gares à moins de 10 minutes en voiture. Les autoroutes A13 et A139 et la nationale N138 sont accessibles à moins de 7 km. On trouve un tennis et un commerce à quelques minutes de la maison.
Elle est à vendre pour la somme de 350 000 €.
N'hésitez pas à prendre contact avec notre agence (Kamel BAZIZ : 07-80-36-63-82) pour toute question sur la maison.

Annonce proposée par un Agent Commercial Partenaire.

Mentions légales

Terrain proposé par un partenaire foncier selon disponibilités et autorisation de publicité au prix de 77 400 €. Hors droit d'enregistrement et frais de notaire. Terrain + Maison proposés au prix de 272 600 € (Hors branchements et raccordements, papiers peints, peintures, revêtement de sol dans les chambres. Tarif modifiable sans préavis). Etiquette énergie : A. Différents modèles disponibles pour ce terrain. Assurances et garanties du constructeur (RC professionnelle, décennale, dommage ouvrage, garantie de remboursement de l'acompte, livraison à prix et délai convenu) : https://www.maisons-balency.fr/informations-legales/. HEXAOM Services est enregistré auprès de l'ORIAS en tant que Courtier en financement, Niveau 1, sous le numéro 14001345.

Contactez l'agence de Boos

02 35 80 66 66

    * Champs obligatoires

    Vos informations sont traitées par HEXAOM et transmises à un conseiller commercial qui vous contactera afin de répondre à votre demande. Les plans et images présentés sur notre site sont la propriété d’HEXAOM et ne peuvent pas être reproduits sans son accord. Pour retrouver notre politique de protection des données personnelles et exercer vos droits conformément à la « loi informatique et liberté » cliquez-ici.