Maison neuve à
Maule
(78580) Référence :
CM2332996_1
Prix du projet : Maison avec Terrain
prix 425 000 €
- 6 pièces
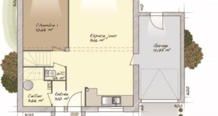
- 4 chambres
- Surface maison 98 m2
VENTE d'une maison F6 (98 m²) à Maule
PROCHE DE BOULOGNE-BILLANCOURT - MAISON 6 PIÈCES NEUVE
Au pied de la gare (Paris à 60 min avec le Transilien N), votre agence Maisons Balency Saint-Maur-des-Fossés est heureuse de vous proposer cette maison de 6 pièces de 98 m² et de 500 m² de terrain à Maule (78580).
Cette maison compte 2 niveaux. Elle comporte quatre chambres, une cuisine et une salle de bains. La maison est neuve.
Il y a tous les types d'établissements scolaires (de la maternelle au lycée) à moins de 10 minutes à pied. Niveau transports en commun, on trouve la gare Maule à proximité. On trouve une bibliothèque, un tennis, des commerces, des boulangeries, un supermarché, trois épiceries et trois boucheries-charcuteries à quelques minutes à peine.
Son prix de vente est de 425 000 €.
Contactez Christophe MONTANIER (tél : 06-10-23-51-22) pour toute question sur la maison ou sur les démarches à suivre. Maisons Balency Saint-Maur-des-Fossés vous accompagne à toutes les étapes de votre projet et dans tous vos projets immobiliers.
Annonce proposée par un Agent Commercial Partenaire.
Mentions légales
Terrain proposé par un partenaire foncier selon disponibilités et autorisation de publicité au prix de 195 000 €. Hors droit d'enregistrement et frais de notaire. Terrain + Maison proposés au prix de 230 000 € (Hors branchements et raccordements, papiers peints, peintures, revêtement de sol dans les chambres. Tarif modifiable sans préavis). Etiquette énergie : A. Différents modèles disponibles pour ce terrain. Assurances et garanties du constructeur (RC professionnelle, décennale, dommage ouvrage, garantie de remboursement de l'acompte, livraison à prix et délai convenu) : https://www.maisons-balency.fr/informations-legales/. HEXAOM Services est enregistré auprès de l'ORIAS en tant que Courtier en financement, Niveau 1, sous le numéro 14001345.Agence Maisons Balency de Saint-Maur-des-Fossés (94100)
- Téléphone :
- 01 87 36 85 37
- Adressse :
- 12 avenue de la république
94100 Saint-Maur-des-Fossés, France
