Maison neuve à
Maulette
(78550) Référence :
TD2421073_4
Prix du projet : Maison avec Terrain
prix 440 000 €
- 6 pièces
- 4 chambres
- Surface maison 90 m2
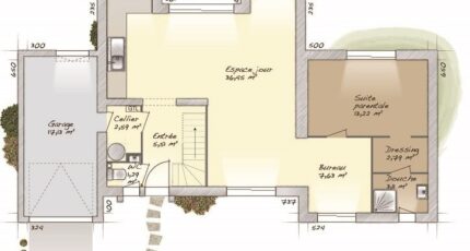
VENTE : maison de 6 pièces (90 m²) à Maulette
IDÉALEMENT SITUÉE - MAISON 6 PIÈCES NEUVE
En vente : à quelques minutes du Transilien N (gare de Houdan, 50 min de Paris), nous vous présentons, idéalement située dans Maulette (78550), cette maison de 6 pièces de 90 m². Elle dispose de quatre chambres, d'une cuisine et de deux salles de bains.
Le terrain de la maison est de 540 m².
Cette maison compte 2 niveaux. Elle est neuve.
Cette propriété se trouve dans un quartier recherché. Il y a deux établissements scolaires à moins de 10 minutes à pied et, parmi lesquels le Collège François Mauriac. Il y a un tennis, six commerces et une poissonnerie à proximité du logement.
Son prix de vente est de 440 000 €.
Contactez Thibault DUTEURTRE (06-23-41-73-81) pour plus d'informations sur la maison ou sur les démarches à suivre. Maisons Balency Coignières est là pour vous accompagner à toutes les étapes de votre projet.
Annonce proposée par un Agent Commercial Partenaire.
Mentions légales
Terrain proposé par un partenaire foncier selon disponibilités et autorisation de publicité au prix de 125 000 €. Hors droit d'enregistrement et frais de notaire. Terrain + Maison proposés au prix de 440 000 € (Hors branchements et raccordements, papiers peints, peintures, revêtement de sol dans les chambres. Tarif modifiable sans préavis). Etiquette énergie : A. Différents modèles disponibles pour ce terrain. Assurances et garanties du constructeur (RC professionnelle, décennale, dommage ouvrage, garantie de remboursement de l'acompte, livraison à prix et délai convenu) : https://www.maisons-balency.fr/informations-legales/. HEXAOM Services est enregistré auprès de l'ORIAS en tant que Courtier en financement, Niveau 1, sous le numéro 14001345.Agence Maisons Balency de Coignières (78310)
- Téléphone :
- 01 34 61 42 59
- Adressse :
- Domexpo Ouest
78310 Coignières, France
