Maison neuve à
Maurecourt
(78780) Référence :
AD2299833_1
Prix du projet : Maison avec Terrain
prix 544 000 €
- 6 pièces
- 3 chambres
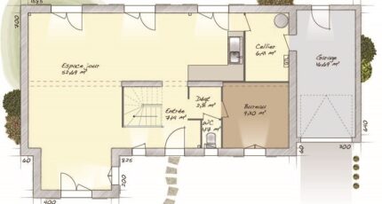
- Surface maison 133 m2
Maurecourt : maison de 6 pièces (133 m²) en vente
IDÉALEMENT SITUÉE - MAISON 6 PIÈCES NEUVE
À proximité de la gare (Paris à 25 min par le Transilien J), Maisons Balency Coignières vous propose en vente, idéalement située dans Maurecourt (78780), cette maison de 6 pièces de 133 m² et de 300 m² de terrain.
Cette maison comporte 2 niveaux. Elle inclut trois chambres, une cuisine et deux salles de bains. La maison est neuve.
Cette maison se situe dans un quartier recherché. On trouve l'École Élémentaire Tilleuls, l'École Élémentaire la Cerisaie et l'École Maternelle Chantebelle à moins de 10 minutes à pied et trois crèches. Niveau transports, il y a deux lignes de RER (A et C) ainsi que 1 gare à moins de 10 minutes en voiture. Il y a une bibliothèque, un tennis, des commerces, trois boulangeries, un bureau de poste, trois épiceries et une boucherie-charcuterie dans les environs.
Son prix de vente est de 544 000 €.
Prenez contact avec Arnaud DUTEURTRE (06-13-43-01-46) pour toute question sur le bien, sur les modalités de vente ou sur les démarches à suivre.
Annonce proposée par un Agent Commercial Partenaire.
Mentions légales
Terrain proposé par un partenaire foncier selon disponibilités et autorisation de publicité au prix de 213 000 €. Hors droit d'enregistrement et frais de notaire. Maison proposée, avec un contrat de construction de maison individuelle, dans le cadre de la loi du 19/12/1990, au prix de 331 000 € (Hors branchements et raccordements, papiers peints, peintures, revêtement de sol dans les chambres, qui sont chiffrés dans les travaux qui restent à charge du client. Tarif modifiable sans préavis). Étiquette énergie : A. Différents modèles disponibles pour ce terrain. Assurances et garanties du constructeur comprises (RC professionnelle, décennale, dommage ouvrage).Agence Maisons Balency de Coignières (78310)
- Téléphone :
- 01 34 61 42 59
- Adressse :
- Domexpo Ouest
78310 Coignières, France
