Maison neuve à
Maurecourt (78780) Référence : DD2326751_1

Prix du projet : Maison avec Terrain

prix 641 000 €

  • 7 pièces
  • 4 chambres
  • Surface maison 160 m2

Maurecourt : maison de 7 pièces (160 m²) en vente
MAISON 7 PIÈCES NEUVE - PROCHE DE PARIS
À quelques minutes de la gare (Paris à 25 min par le Transilien J), Maisons Balency Pontoise vous présente cette maison de 7 pièces de 160 m² et de 641 m² de terrain à vendre à Maurecourt (78780).
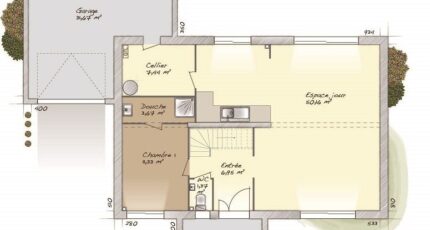
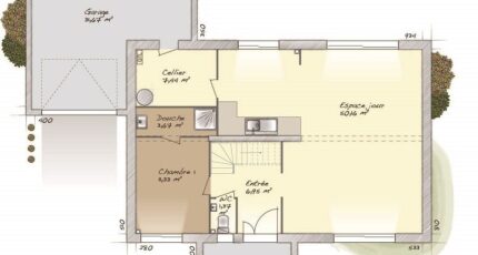
Cette maison possède 2 niveaux. Elle propose quatre chambres, une cuisine et deux salles de bains. Cette maison est neuve.
L'École Élémentaire Tilleuls, l'École Élémentaire la Cerisaie et l'École Maternelle Chantebelle sont implantées à moins de 10 minutes à pied, tout comme trois crèches. Côté transports en commun, il y a deux lignes de RER (A et C) ainsi que 33 gares à moins de 10 minutes en voiture. On trouve une bibliothèque, un tennis, des commerces, trois boulangeries, trois épiceries, un bureau de poste et une boucherie-charcuterie dans les environs.
Elle est à vendre pour la somme de 641 000 €.
Contactez Denis DUCOS (06-80-06-50-40) pour toute question sur la maison ou sur les démarches à suivre. Maisons Balency Pontoise vous accompagne dans tous vos projets immobiliers et à toutes les étapes de votre projet.

Annonce proposée par un Agent Commercial Partenaire.

Mentions légales

Terrain proposé par un partenaire foncier selon disponibilités et autorisation de publicité au prix de 291 000 €. Hors droit d'enregistrement et frais de notaire. Maison proposée, avec un contrat de construction de maison individuelle, dans le cadre de la loi du 19/12/1990, au prix de 350 000 € (Hors branchements et raccordements, papiers peints, peintures, revêtement de sol dans les chambres, qui sont chiffrés dans les travaux qui restent à charge du client. Tarif modifiable sans préavis). Étiquette énergie : A. Différents modèles disponibles pour ce terrain. Assurances et garanties du constructeur comprises (RC professionnelle, décennale, dommage ouvrage).

Contactez l'agence de Pontoise

01 39 91 70 10

    * Champs obligatoires

    Vos informations sont traitées par HEXAOM et transmises à un conseiller commercial qui vous contactera afin de répondre à votre demande. Les plans et images présentés sur notre site sont la propriété d’HEXAOM et ne peuvent pas être reproduits sans son accord. Pour retrouver notre politique de protection des données personnelles et exercer vos droits conformément à la « loi informatique et liberté » cliquez-ici.