Maison neuve à
Ménesqueville
(27850) Référence :
RC2419163_3
Prix du projet : Maison avec Terrain
prix 374 675 €
- 7 pièces
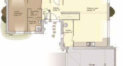
- 5 chambres
- Surface maison 170 m2
Maison F7 (170 m²) à construire à Ménesqueville
IDÉALEMENT SITUÉE - MAISON 7 PIÈCES NEUVE
À vendre : à 25 km de Rouen, votre agence Maisons Balency Boos est heureuse de vous proposer cette maison de 7 pièces de plain-pied de 170 m² idéalement située dans Ménesqueville (27850).
Conçue de plain-pied, elle offre cinq chambres, une cuisine et trois salles de bains. La maison est neuve.
Le terrain du bien est de 1 063 m².
Cette maison se situe dans un quartier prisé. L'École Élémentaire Louis Pasteur se trouve à moins de 10 minutes à pied. Il y a un commerce dans les environs.
Son prix de vente est de 374 675 €.
Prenez contact avec Célia RENIER (07-62-90-87-77) pour tout renseignement sur la maison. Maisons Balency Boos vous accompagne dans toutes vos démarches et dans tous vos projets immobiliers.
Annonce proposée par un Agent Commercial Partenaire.
Mentions légales
Terrain proposé par un partenaire foncier selon disponibilités et autorisation de publicité au prix de 47 500 €. Hors droit d'enregistrement et frais de notaire. Terrain + Maison proposés au prix de 374 675 € (Hors branchements et raccordements, papiers peints, peintures, revêtement de sol dans les chambres. Tarif modifiable sans préavis). Etiquette énergie : A. Différents modèles disponibles pour ce terrain. Assurances et garanties du constructeur (RC professionnelle, décennale, dommage ouvrage, garantie de remboursement de l'acompte, livraison à prix et délai convenu) : https://www.maisons-balency.fr/informations-legales/. HEXAOM Services est enregistré auprès de l'ORIAS en tant que Courtier en financement, Niveau 1, sous le numéro 14001345.Agence Maisons Balency de Boos (76520)
- Téléphone :
- 02 35 80 66 66
- Adressse :
- Lotissement de la Forge Féret
76520 Boos, France