Maison neuve à
Mennecy
(91540) Référence :
AA2309641_4
Prix du projet : Maison avec Terrain
prix 565 890 €
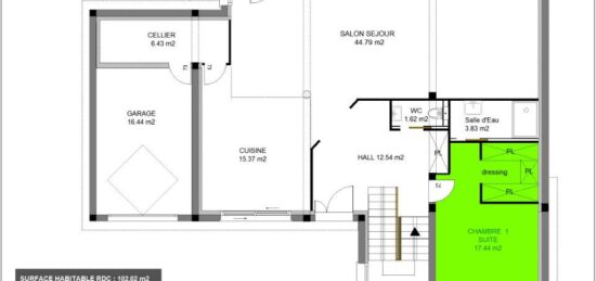
- 7 pièces
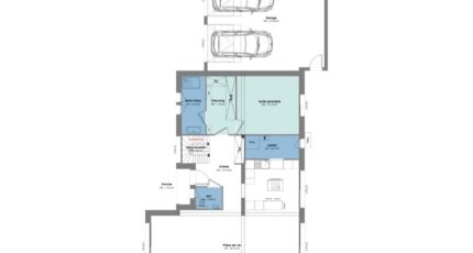
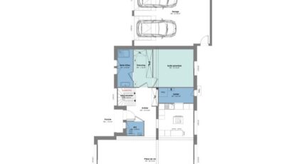
- 4 chambres
- Surface maison 157 m2
Écharcon : maison T7 (157 m²) à vendre
EMPLACEMENT PRIVILÉGIÉ - MAISON 7 PIÈCES NEUVE
En vente : à deux pas du RER D (station Évry-Courcouronnes, 35 min de Paris), laissez vous charmer par cette maison de 7 pièces de 157 m² bénéficiant d'un emplacement d'exception dans Écharcon (91540). Son intérieur comporte quatre chambres, une cuisine et deux salles de bains.
Le terrain de la maison s'étend sur 1 000 m².
Cette maison compte 2 niveaux. Elle est neuve.
La maison se situe dans un secteur convoité. L'École Primaire Jean Satonnet est implantée à moins de 10 minutes à pied. Niveau transports en commun, on trouve le RER D et C ainsi que 18 gares à moins de 10 minutes en voiture. Il y a une bibliothèque et un commerce à proximité.
Elle est à vendre pour la somme de 565 890 €.
Contactez notre agence au 06-51-51-80-60 pour tout renseignement sur la maison ou sur les modalités de vente. Maisons Balency Ormoy est là pour vous accompagner dans toutes vos démarches.
Annonce proposée par un Agent Commercial Partenaire.
Mentions légales
Terrain proposé par un partenaire foncier selon disponibilités et autorisation de publicité au prix de 210 000 €. Hors droit d'enregistrement et frais de notaire. Maison proposée, avec un contrat de construction de maison individuelle, dans le cadre de la loi du 19/12/1990, au prix de 355 890 € (Hors branchements et raccordements, papiers peints, peintures, revêtement de sol dans les chambres, qui sont chiffrés dans les travaux qui restent à charge du client. Tarif modifiable sans préavis). Étiquette énergie : A. Différents modèles disponibles pour ce terrain. Assurances et garanties du constructeur comprises (RC professionnelle, décennale, dommage ouvrage).Agence Maisons Balency de Ormoy (91540)
- Téléphone :
- 09 67 70 15 81
- Adressse :
- 23 chemin de Tournenfils - 1er étage
91540 Ormoy, France
