Maison neuve à
Mennecy
(91540) Référence :
KM2446392_2
Prix du projet : Maison avec Terrain
prix 635 000 €
- 7 pièces
- 4 chambres
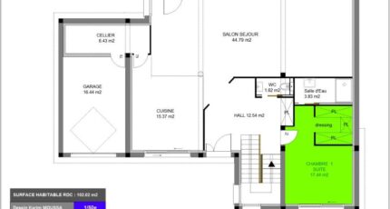
- Surface maison 160 m2
EXCLUSIVITÉ À MENNECY : TERRAIN D'EXCEPTION DE 1 200 m² avec un exemple de projet " Maisons Balency agence d'Ormoy "
L'opportunité rare d'allier grand espace et vie citadine.
L'agence Maisons BALENCY d'Ormoy, marque historique du Groupe Hexaom constructeur de maisons individuelles depuis plus de 100 ans vous propose ce terrain remarquable situé sur la commune recherchée de Mennecy.
Un emplacement stratégique
Mobilité : Gare de Mennecy accessible en 15 minutes à pied.
Commodités : Proximité immédiate des commerces et services du centre-ville.
Environnement : Un cadre de vie privilégié alliant confort urbain et tranquillité.
Caractéristiques techniques et potentiel
Surface totale : 1 200 m² (non divisible).
Façade : 30 mètres linéaires, offrant une grande liberté architecturale.
Emprise au sol : Jusqu'à 600 m² réalisables.
Configuration : Terrain clôturé en partie, idéal pour une grande villa familiale ou un projet bi-familial.
Votre projet avec Maisons BALENCY
En choisissant l'agence d'Ormoy, vous profitez de l'expertise centenaire de Maisons Balency et des garanties du Groupe Hexaom pour une construction pérenne, sur-mesure et sécurisée.
PRIX terrain seul : 232 500 €
Un positionnement prix/surface inédit sur le secteur.
Contactez l'agence Maisons BALENCY d'Ormoy pour organiser une visite et réaliser l'étude gratuite de votre future construction.
Annonce proposée par un Agent Commercial Partenaire.
Mentions légales
Terrain proposé par un partenaire foncier selon disponibilités et autorisation de publicité au prix de 232 500 €. Hors droit d'enregistrement et frais de notaire. Terrain + Maison proposés au prix de 635 000 € (Hors branchements et raccordements, papiers peints, peintures, revêtement de sol dans les chambres. Tarif modifiable sans préavis). Etiquette énergie : A. Différents modèles disponibles pour ce terrain. Assurances et garanties du constructeur (RC professionnelle, décennale, dommage ouvrage, garantie de remboursement de l'acompte, livraison à prix et délai convenu) : https://www.maisons-balency.fr/informations-legales/. HEXAOM Services est enregistré auprès de l'ORIAS en tant que Courtier en financement, Niveau 1, sous le numéro 14001345.Agence Maisons Balency de Ormoy (91540)
- Téléphone :
- 09 67 70 15 81
- Adressse :
- 23 chemin de Tournenfils - 1er étage
91540 Ormoy, France
