Maison neuve à
Menneval (27300) Référence : SEMA9005_1

Prix du projet : Maison avec Terrain

prix 147 000 €

  • 4 pièces
  • 2 chambres
  • Surface maison 50 m2

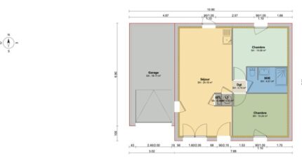
VENTE : maison F4 (49 m²) à Menneval
MAISON 4 PIÈCES NEUVE
À vendre : à 45 km de la Manche, à Menneval (27300), ayez le coup de coeur pour cette maison de 4 pièces de plain-pied de 49 m² et de 700 m² de terrain. Son intérieur est composé de deux chambres, d'une cuisine et d'une salle de bains.
La maison est neuve.
Il y a une école primaire dans la commune. Niveau transports en commun, on trouve deux gares (Bernay et Serquigny) à moins de 10 minutes en voiture. Il y a un accès à l'autoroute A28 à 6 km. Il y a une boucherie-charcuterie à proximité.
Son prix de vente est de 147 000 €.
Contactez notre agence (MASSON Sébastien : 06-23-38-14-17) pour obtenir de plus amples informations sur cette maison. Maisons Balency Boos vous accompagne dans tous vos projets immobiliers et dans toutes vos démarches.

Annonce proposée par un Agent Commercial Partenaire.

Mentions légales

Terrain proposé par un partenaire foncier selon disponibilités et autorisation de publicité au prix de 44 000 €. Hors droit d'enregistrement et frais de notaire. Terrain + Maison proposés au prix de 103 000 € (Hors branchements et raccordements, papiers peints, peintures, revêtement de sol dans les chambres. Tarif modifiable sans préavis). Etiquette énergie : A. Différents modèles disponibles pour ce terrain. Assurances et garanties du constructeur (RC professionnelle, décennale, dommage ouvrage, garantie de remboursement de l'acompte, livraison à prix et délai convenu) : https://www.maisons-balency.fr/informations-legales/. HEXAOM Services est enregistré auprès de l'ORIAS en tant que Courtier en financement, Niveau 1, sous le numéro 14001345.

Contactez l'agence de Boos

02 35 80 66 66

    * Champs obligatoires

    Vos informations sont traitées par HEXAOM et transmises à un conseiller commercial qui vous contactera afin de répondre à votre demande. Les plans et images présentés sur notre site sont la propriété d’HEXAOM et ne peuvent pas être reproduits sans son accord. Pour retrouver notre politique de protection des données personnelles et exercer vos droits conformément à la « loi informatique et liberté » cliquez-ici.