Maison neuve à
Menneval (27300) Référence : RC2382030_3

Prix du projet : Maison avec Terrain

prix 235 631 €

  • 9 pièces
  • 5 chambres
  • Surface maison 124 m2

Maison de 9 pièces (124 m²) à construire à Menneval
IDÉALEMENT SITUÉE - MAISON 9 PIÈCES NEUVE
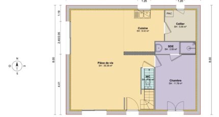
En vente : localisée à 45 km de la Manche, votre agence Maisons Balency Boos est ravie de vous présenter cette maison de 9 pièces de 124 m² idéalement située dans Menneval (27300). Son intérieur compte cinq chambres, une cuisine et trois salles de bains.
Le terrain du bien s'étend sur 721 m².
Cette maison comporte 2 niveaux. Elle est neuve.
Cette maison se situe dans un quartier recherché. On y trouve une école primaire. Côté transports en commun, il y a les gares Bernay et Serquigny à moins de 10 minutes en voiture. Il y a un accès à l'autoroute A28 à 6 km. On trouve une boucherie-charcuterie à quelques minutes.
Son prix de vente est de 235 631 €.
Contactez Célia RENIER (tél : 07-62-90-87-77) pour toute information sur la maison.

Annonce proposée par un Agent Commercial Partenaire.

Mentions légales

Terrain proposé par un partenaire foncier selon disponibilités et autorisation de publicité au prix de 45 000 €. Hors droit d'enregistrement et frais de notaire. Terrain + Maison proposés au prix de 190 631 € (Hors branchements et raccordements, papiers peints, peintures, revêtement de sol dans les chambres. Tarif modifiable sans préavis). Etiquette énergie : A. Différents modèles disponibles pour ce terrain. Assurances et garanties du constructeur (RC professionnelle, décennale, dommage ouvrage, garantie de remboursement de l'acompte, livraison à prix et délai convenu) : https://www.maisons-balency.fr/informations-legales/. HEXAOM Services est enregistré auprès de l'ORIAS en tant que Courtier en financement, Niveau 1, sous le numéro 14001345.

Contactez l'agence de Boos

02 35 80 66 66

    * Champs obligatoires

    Vos informations sont traitées par HEXAOM et transmises à un conseiller commercial qui vous contactera afin de répondre à votre demande. Les plans et images présentés sur notre site sont la propriété d’HEXAOM et ne peuvent pas être reproduits sans son accord. Pour retrouver notre politique de protection des données personnelles et exercer vos droits conformément à la « loi informatique et liberté » cliquez-ici.