Maison neuve à
Menneval (27300) Référence : RC2382030_4

Prix du projet : Maison avec Terrain

prix 307 976 €

  • 6 pièces
  • 4 chambres
  • Surface maison 90 m2

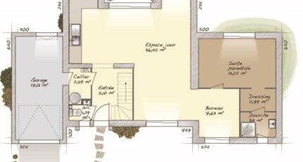
Maison de 6 pièces (90 m²) à construire à Menneval
IDÉALEMENT SITUÉE - MAISON 6 PIÈCES NEUVE
À 45 km de la Manche, nous sommes heureux de vous présenter cette maison de 6 pièces de 90 m² en vente idéalement située dans Menneval (27300). Son intérieur se divise en quatre chambres, une cuisine et deux salles de bains.
Le terrain du bien s'étend sur 721 m².
Cette maison possède 2 niveaux. Elle est neuve.
Cette maison se situe dans un quartier attractif. Une école primaire y est implantée. Côté transports, il y a deux gares (Bernay et Serquigny) à moins de 10 minutes en voiture. Il y a un accès à l'autoroute A28 à 6 km. On trouve une boucherie-charcuterie à proximité de la maison.
Son prix de vente est de 307 976 €.
Contactez notre agence (RENIER Célia : 07-62-90-87-77) pour plus d'informations sur la maison ou sur les modalités de vente. Maisons Balency Boos vous accompagne à toutes les étapes de l'achat et dans toutes vos démarches.

Annonce proposée par un Agent Commercial Partenaire.

Mentions légales

Terrain proposé par un partenaire foncier selon disponibilités et autorisation de publicité au prix de 45 000 €. Hors droit d'enregistrement et frais de notaire. Terrain + Maison proposés au prix de 262 976 € (Hors branchements et raccordements, papiers peints, peintures, revêtement de sol dans les chambres. Tarif modifiable sans préavis). Etiquette énergie : A. Différents modèles disponibles pour ce terrain. Assurances et garanties du constructeur (RC professionnelle, décennale, dommage ouvrage, garantie de remboursement de l'acompte, livraison à prix et délai convenu) : https://www.maisons-balency.fr/informations-legales/. HEXAOM Services est enregistré auprès de l'ORIAS en tant que Courtier en financement, Niveau 1, sous le numéro 14001345.

Contactez l'agence de Boos

02 35 80 66 66

    * Champs obligatoires

    Vos informations sont traitées par HEXAOM et transmises à un conseiller commercial qui vous contactera afin de répondre à votre demande. Les plans et images présentés sur notre site sont la propriété d’HEXAOM et ne peuvent pas être reproduits sans son accord. Pour retrouver notre politique de protection des données personnelles et exercer vos droits conformément à la « loi informatique et liberté » cliquez-ici.