Maison neuve à
Menneval (27300) Référence : KB2440513_3

Prix du projet : Maison avec Terrain

prix 165 000 €

  • 4 pièces
  • 2 chambres
  • Surface maison 70 m2

Menneval : maison T4 (70 m²) en vente
EMPLACEMENT PRIVILÉGIÉ - MAISON 4 PIÈCES NEUVE
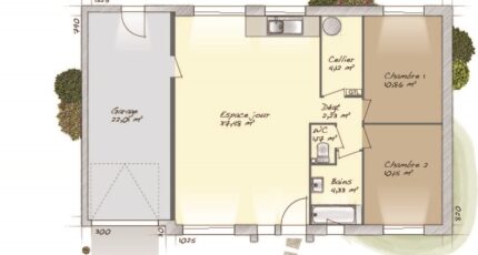
En vente à 45 km de la Manche, venez découvrir cette maison de 4 pièces de plain-pied de 70 m², bénéficiant d'un emplacement d'exception dans Menneval (27300). Elle comporte deux chambres, une cuisine et une salle de bains.
Le terrain de cette maison est de 720 m².
La maison est neuve.
Ce bien se situe dans un quartier recherché. Une école primaire y est implantée. Niveau transports, on trouve les gares Bernay et Serquigny à moins de 10 minutes en voiture. Il y a une boucherie-charcuterie à proximité de la maison.
Il est à vendre pour la somme de 165 000 €.
Prenez contact avec Kamel BAZIZ (07-80-36-63-82) pour obtenir de plus amples renseignements sur la maison ou sur les modalités de vente. Faites de vos projets immobiliers une réalité avec Maisons Balency Boos.

Annonce proposée par un Agent Commercial Partenaire.

Mentions légales

Terrain proposé par un partenaire foncier selon disponibilités et autorisation de publicité au prix de 46 500 €. Hors droit d'enregistrement et frais de notaire. Terrain + Maison proposés au prix de 165 000 € (Hors branchements et raccordements, papiers peints, peintures, revêtement de sol dans les chambres. Tarif modifiable sans préavis). Etiquette énergie : A. Différents modèles disponibles pour ce terrain. Assurances et garanties du constructeur (RC professionnelle, décennale, dommage ouvrage, garantie de remboursement de l'acompte, livraison à prix et délai convenu) : https://www.maisons-balency.fr/informations-legales/. HEXAOM Services est enregistré auprès de l'ORIAS en tant que Courtier en financement, Niveau 1, sous le numéro 14001345.

Contactez l'agence de Boos

02 35 80 66 66

    * Champs obligatoires

    Vos informations sont traitées par HEXAOM et transmises à un conseiller commercial qui vous contactera afin de répondre à votre demande. Les plans et images présentés sur notre site sont la propriété d’HEXAOM et ne peuvent pas être reproduits sans son accord. Pour retrouver notre politique de protection des données personnelles et exercer vos droits conformément à la « loi informatique et liberté » cliquez-ici.