Maison neuve à
Menucourt
(95180) Référence :
MU2277721_6
Prix du projet : Maison avec Terrain
prix 290 000 €
- 5 pièces
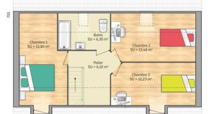
- 3 chambres
- Surface maison 80 m2
VENTE d'une maison de 5 pièces (80 m²) à Menucourt
IDÉALEMENT SITUÉE - MAISON 5 PIÈCES NEUVE
Au pied de la gare de Vaux-sur-Seine (Paris à 35 min par le Transilien J), découvrez en vente, idéalement située dans Menucourt (95180), cette maison de 5 pièces de 80 m² et de 226 m² de terrain. Elle se divise en trois chambres, une cuisine et une salle de bains.
Cette maison compte 2 niveaux. Elle est neuve.
La maison se situe dans un quartier attractif. On trouve cinq établissements scolaires à moins de 10 minutes à pied, tout comme une structure d'accueil pour les enfants en bas âge. Côté transports, il y a les lignes de RER A et C ainsi que 26 gares à moins de 10 minutes en voiture. Il y a une bibliothèque, un tennis, une boulangerie et trois commerces à proximité de la maison. Enfin, le marché Place du marché/Square du 19 mars 1962 a lieu tous les samedis.
Elle est proposée à l'achat pour 290 000 €.
Prenez contact avec notre agence (Mylann URBANSKY : 06-23-32-28-23) pour obtenir de plus amples renseignements sur la maison.
Annonce proposée par un Agent Commercial Partenaire.
Mentions légales
Terrain proposé par un partenaire foncier selon disponibilités et autorisation de publicité au prix de 139 000 €. Hors droit d'enregistrement et frais de notaire. Maison proposée, avec un contrat de construction de maison individuelle, dans le cadre de la loi du 19/12/1990, au prix de 151 000 € (Hors branchements et raccordements, papiers peints, peintures, revêtement de sol dans les chambres, qui sont chiffrés dans les travaux qui restent à charge du client. Tarif modifiable sans préavis). Étiquette énergie : A. Différents modèles disponibles pour ce terrain. Assurances et garanties du constructeur comprises (RC professionnelle, décennale, dommage ouvrage).Agence Maisons Balency de Baillet-en-France (95560)
- Téléphone :
- 01 34 46 05 23
- Adressse :
- 81 rue de Paris
95560 Baillet-en-France, France
