Maison neuve à
Menucourt
(95180) Référence :
CT2352648_2
Prix du projet : Maison avec Terrain
prix 329 800 €
- 5 pièces
- 3 chambres
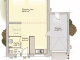
- Surface maison 90 m2
VENTE d'une maison de 5 pièces (90 m²) à Menucourt
QUARTIER RECHERCHÉ - MAISON 5 PIÈCES NEUVE
À vendre : à deux pas de la gare de Vaux-sur-Seine (Paris à 35 min avec le Transilien J), ayez le coup de coeur pour cette maison de 5 pièces de 90 m² et de 220 m² de terrain dans un quartier attractif de Menucourt (95180). Son intérieur inclut trois chambres, une cuisine et une salle de bains.
Il s'agit d'une maison de 2 niveaux. Elle est neuve.
La maison est située dans un secteur convoité. On trouve cinq établissements scolaires à moins de 10 minutes à pied, tout comme une crèche. Côté transports en commun, il y a le RER A et C ainsi que 26 gares à moins de 10 minutes en voiture. On trouve une bibliothèque, un tennis, une boulangerie et trois commerces à quelques minutes à peine. Le marché Place du marché/Square du 19 mars 1962 a lieu tous les samedis.
Elle est proposée à l'achat pour 329 800 €.
N'hésitez pas à prendre contact avec Christophe TALAMONI (tél : 06-49-55-08-27) pour toute question sur la maison, sur les modalités de vente ou sur les démarches à suivre. Donnez vie à vos projets immobiliers avec Maisons Balency Baillet-en-France.
Annonce proposée par un Agent Commercial Partenaire.
Mentions légales
Terrain proposé par un partenaire foncier selon disponibilités et autorisation de publicité au prix de 135 000 €. Hors droit d'enregistrement et frais de notaire. Maison proposée, avec un contrat de construction de maison individuelle, dans le cadre de la loi du 19/12/1990, au prix de 194 800 € (Hors branchements et raccordements, papiers peints, peintures, revêtement de sol dans les chambres, qui sont chiffrés dans les travaux qui restent à charge du client. Tarif modifiable sans préavis). Étiquette énergie : A. Différents modèles disponibles pour ce terrain. Assurances et garanties du constructeur comprises (RC professionnelle, décennale, dommage ouvrage).Agence Maisons Balency de Baillet-en-France (95560)
- Téléphone :
- 01 34 46 05 23
- Adressse :
- 81 rue de Paris
95560 Baillet-en-France, France
