Maison neuve à
Méré
(78490) Référence :
TD2309813_3
Prix du projet : Maison avec Terrain
prix 529 000 €
- 6 pièces
- 4 chambres
- Surface maison 117 m2
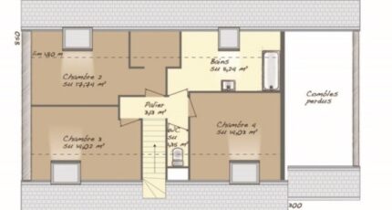
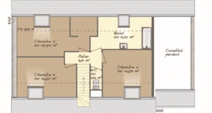
VENTE d'une maison F6 (117 m²) à Méré
IDÉALEMENT SITUÉE - MAISON 6 PIÈCES NEUVE
À côté de la gare de Montfort-l'Amaury-Méré (Paris à 35 min avec le Transilien N), à vendre idéalement située dans Méré (78490), Maisons Balency Coignières vous présente cette maison de 6 pièces de plain-pied de 117 m². Conçue de plain-pied, elle propose quatre chambres, une cuisine et deux salles de bains.
Le terrain de cette maison s'étend sur 721 m².
La maison est neuve.
La maison est située dans un secteur recherché. Des écoles maternelles et élémentaires sont implantées à moins de 10 minutes à pied, tout comme, comme l'École Maternelle Nouvelle. Il y a un tennis, une bibliothèque et un supermarché à proximité de la maison.
Son prix de vente est de 529 000 €.
N'hésitez pas à prendre contact avec notre agence (DUTEURTRE Thibault : 06-23-41-73-81) pour plus de renseignements sur le bien. Maisons Balency Coignières vous accompagne dans toutes vos démarches et dans tous vos projets immobiliers.
Annonce proposée par un Agent Commercial Partenaire.
Mentions légales
Terrain proposé par un partenaire foncier selon disponibilités et autorisation de publicité au prix de 260 000 €. Hors droit d'enregistrement et frais de notaire. Maison proposée, avec un contrat de construction de maison individuelle, dans le cadre de la loi du 19/12/1990, au prix de 269 000 € (Hors branchements et raccordements, papiers peints, peintures, revêtement de sol dans les chambres, qui sont chiffrés dans les travaux qui restent à charge du client. Tarif modifiable sans préavis). Étiquette énergie : A. Différents modèles disponibles pour ce terrain. Assurances et garanties du constructeur comprises (RC professionnelle, décennale, dommage ouvrage).Agence Maisons Balency de Coignières (78310)
- Téléphone :
- 01 34 61 42 59
- Adressse :
- Domexpo Ouest
78310 Coignières, France
