Maison neuve à
Méré
(78490) Référence :
MU2455207_2
Prix du projet : Maison avec Terrain
prix 385 000 €
- 5 pièces
- 3 chambres
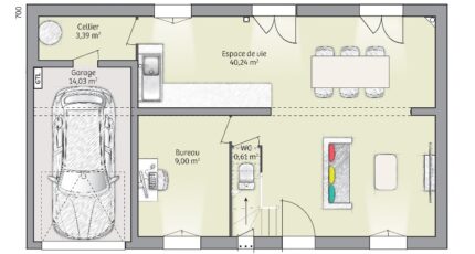
- Surface maison 90 m2
Maison F5 (90 m²) à vendre à Méré
IDÉALEMENT SITUÉE - MAISON 5 PIÈCES NEUVE
À côté de la gare de Montfort-l'Amaury-Méré (Paris à 35 min avec le Transilien N), à vendre idéalement située dans Méré (78490), Maisons Balency Baillet-en-France vous propose cette maison de 5 pièces de 90 m² et de 845 m² de terrain. Son intérieur offre trois chambres, une cuisine et une salle de bains.
C'est une maison de 2 niveaux. Elle est neuve.
La maison est située dans un quartier attractif. Des écoles maternelles et élémentaires se trouvent à moins de 10 minutes à pied, tout comme, parmi lesquelles l'École Maternelle Nouvelle. Niveau transports, il y a huit gares à moins de 10 minutes en voiture. On trouve un tennis et une bibliothèque à proximité.
Elle est à vendre pour la somme de 385 000 €.
Prenez contact avec Mylann URBANSKY (tél : 06-23-32-28-23) pour toute question sur la maison.
Annonce proposée par un Agent Commercial Partenaire.
Mentions légales
Terrain proposé par un partenaire foncier selon disponibilités et autorisation de publicité au prix de 235 000 €. Hors droit d'enregistrement et frais de notaire. Terrain + Maison proposés au prix de 385 000 € (Hors branchements et raccordements, papiers peints, peintures, revêtement de sol dans les chambres. Tarif modifiable sans préavis). Etiquette énergie : A. Différents modèles disponibles pour ce terrain. Assurances et garanties du constructeur (RC professionnelle, décennale, dommage ouvrage, garantie de remboursement de l'acompte, livraison à prix et délai convenu) : https://www.maisons-balency.fr/informations-legales/. HEXAOM Services est enregistré auprès de l'ORIAS en tant que Courtier en financement, Niveau 1, sous le numéro 14001345.Agence Maisons Balency de Baillet-en-France (95560)
- Téléphone :
- 01 34 46 05 23
- Adressse :
- 81 rue de Paris
95560 Baillet-en-France, France
