Maison neuve à
Méry-sur-Marne (77730) Référence : CM2304860_2

Prix du projet : Maison avec Terrain

prix 389 000 €

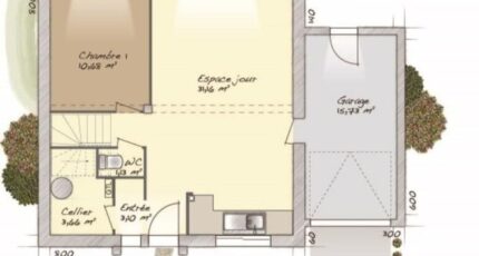
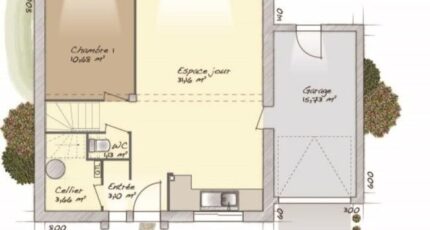
  • 6 pièces
  • 4 chambres
  • Surface maison 118 m2

Méry-sur-Marne : maison T6 (98 m²) en vente
MAISON 6 PIÈCES NEUVE - PROCHE DE MEAUX
À vendre : proche du Transilien P (gare de Nanteuil-Saâcy, 50 min de Paris), ayez le coup de coeur pour cette maison de 6 pièces de 98 m² à Méry-sur-Marne (77730). Son intérieur compte quatre chambres, une cuisine et une salle de bains.
Le terrain de cette maison s'étend sur 678 m².
Cette maison possède 2 niveaux. Elle est neuve.
Une école élémentaire est implantée dans le quartier. Côté transports en commun, on trouve les gares Nanteuil-Saâcy, La Ferté-sous-Jouarre et Nogent-l'Artaud-Charly à moins de 10 minutes en voiture. Il y a deux boulangeries, un commerce, deux boucheries-charcuteries, une épicerie et un bureau de poste dans les environs.
Elle est proposée à l'achat pour 389 000 €.
Prenez contact avec Christophe MONTANIER (06-10-23-51-22) pour toute information sur cette maison, sur les démarches à suivre ou sur les modalités de vente.

Annonce proposée par un Agent Commercial Partenaire.

Mentions légales

Terrain proposé par un partenaire foncier selon disponibilités et autorisation de publicité au prix de 110 000 €. Hors droit d'enregistrement et frais de notaire. Maison proposée, avec un contrat de construction de maison individuelle, dans le cadre de la loi du 19/12/1990, au prix de 279 000 € (Hors branchements et raccordements, papiers peints, peintures, revêtement de sol dans les chambres, qui sont chiffrés dans les travaux qui restent à charge du client. Tarif modifiable sans préavis). Étiquette énergie : A. Différents modèles disponibles pour ce terrain. Assurances et garanties du constructeur comprises (RC professionnelle, décennale, dommage ouvrage).

Contactez l'agence de Saint-Maur-des-Fossés

01 87 36 85 37

    * Champs obligatoires

    Vos informations sont traitées par HEXAOM et transmises à un conseiller commercial qui vous contactera afin de répondre à votre demande. Les plans et images présentés sur notre site sont la propriété d’HEXAOM et ne peuvent pas être reproduits sans son accord. Pour retrouver notre politique de protection des données personnelles et exercer vos droits conformément à la « loi informatique et liberté » cliquez-ici.