Maison neuve à
Méry-sur-Marne
(77730) Référence :
CM2304860_3
Prix du projet : Maison avec Terrain
prix 335 000 €
- 6 pièces
- 4 chambres
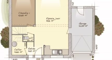
- Surface maison 118 m2
MAISON R+1 DE 118 M2 AVEC UN GARAGE INTEGRE, SUR UN TERRAIN DE 678 M2 SUR LA COMMUNE DE MERY SUR MARNE
MAISON VENDU HORS D'EAU HORS D'AIR
Annonce proposée par un Agent Commercial Partenaire.
Mentions légales
Terrain proposé par un partenaire foncier selon disponibilités et autorisation de publicité au prix de 110 000 €. Hors droit d'enregistrement et frais de notaire. Maison proposée, avec un contrat de construction de maison individuelle, dans le cadre de la loi du 19/12/1990, au prix de 225 000 € (Hors branchements et raccordements, papiers peints, peintures, revêtement de sol dans les chambres, qui sont chiffrés dans les travaux qui restent à charge du client. Tarif modifiable sans préavis). Étiquette énergie : A. Différents modèles disponibles pour ce terrain. Assurances et garanties du constructeur comprises (RC professionnelle, décennale, dommage ouvrage).Agence Maisons Balency de Saint-Maur-des-Fossés (94100)
- Téléphone :
- 01 87 36 85 37
- Adressse :
- 12 avenue de la république
94100 Saint-Maur-des-Fossés, France
