Maison neuve à
Méry-sur-Oise
(95540) Référence :
CT2414400_1
Prix du projet : Maison avec Terrain
prix 341 720 €
- 5 pièces
- 3 chambres
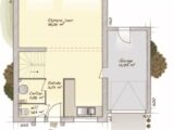
- Surface maison 87 m2
Méry-sur-Oise : maison T5 (87 m²) à vendre
IDÉALEMENT SITUÉE - MAISON 5 PIÈCES NEUVE
À vendre : proche du Transilien H (40 min de Paris), Maisons Balency Baillet-en-France vous propose cette maison de 5 pièces de 87 m² avec vue sur espace vert idéalement située dans Méry-sur-Oise (95540). Elle inclut trois chambres, une cuisine et une salle de bains.
Le terrain de la propriété est de 242 m².
Cette maison compte 2 niveaux. Elle est neuve.
Cette maison est située dans un quartier prisé. L'École Élémentaire Gaston Monmousseau et l'École Maternelle Gaston Monmousseau se trouvent à moins de 10 minutes à pied. Niveau transports, il y a les lignes C et A du RER ainsi que 31 gares à moins de 10 minutes en voiture. Il y a une bibliothèque, trois commerces et un supermarché dans les environs.
Elle est proposée à l'achat pour 341 720 €.
Contactez notre agence (TALAMONI Christophe : 06-49-55-08-27) pour obtenir de plus amples informations sur la maison, sur les modalités de vente ou sur les démarches à suivre. Maisons Balency Baillet-en-France est là pour vous accompagner dans tous vos projets immobiliers.
Annonce proposée par un Agent Commercial Partenaire.
Mentions légales
Terrain proposé par un partenaire foncier selon disponibilités et autorisation de publicité au prix de 159 000 €. Hors droit d'enregistrement et frais de notaire. Terrain + Maison proposés au prix de 341 720 € (Hors branchements et raccordements, papiers peints, peintures, revêtement de sol dans les chambres. Tarif modifiable sans préavis). Etiquette énergie : A. Différents modèles disponibles pour ce terrain. Assurances et garanties du constructeur (RC professionnelle, décennale, dommage ouvrage, garantie de remboursement de l'acompte, livraison à prix et délai convenu) : https://www.maisons-balency.fr/informations-legales/. HEXAOM Services est enregistré auprès de l'ORIAS en tant que Courtier en financement, Niveau 1, sous le numéro 14001345.Agence Maisons Balency de Baillet-en-France (95560)
- Téléphone :
- 01 34 46 05 23
- Adressse :
- 81 rue de Paris
95560 Baillet-en-France, France
