Maison neuve à
Beaumesnil (27410) Référence : EL2312796_1

Prix du projet : Maison avec Terrain

prix 315 800 €

  • 8 pièces
  • 5 chambres
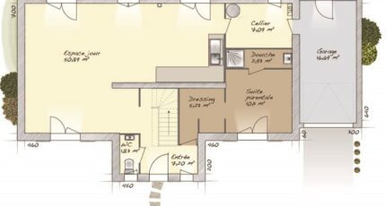
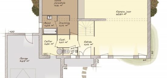
  • Surface maison 145 m2

Mesnil-en-Ouche : maison de 8 pièces (145 m²) à vendre
IDÉALEMENT SITUÉE - MAISON 8 PIÈCES NEUVE
À vendre : idéalement située dans Mesnil-en-Ouche (27410), découvrez cette maison de 8 pièces de 145 m². Son intérieur se divise en cinq chambres, une cuisine et trois salles de bains.
Le terrain de la maison s'étend sur 1 800 m².
C'est une maison de 2 niveaux. Elle est neuve.
Cette maison se trouve dans un secteur recherché. Il y a des écoles (de la maternelle au lycée) à moins de 10 minutes en voiture, tout comme une structure d'accueil pour les tout-petits à moins de 10 minutes à pied. Niveau transports, on trouve deux gares (Bernay et Beaumont-le-Roger) à moins de 10 minutes en voiture. Il y a des tennis, un bassin de natation, des boulangeries, des commerces, des supermarchés, trois bureaux de poste et une poissonnerie dans les environs. Enfin, 3 marchés animent le quartier.
Elle est à vendre pour la somme de 315 800 €.
N'hésitez pas à prendre contact avec notre agence (Aurélien LEOVANT : 02-35-80-66-66) pour tout renseignement sur la maison ou sur les démarches à suivre. Concrétisez vos projets immobiliers avec Maisons Balency Boos.

Annonce proposée par un Agent Commercial Partenaire.

Mentions légales

Terrain proposé par un partenaire foncier selon disponibilités et autorisation de publicité au prix de 25 000 €. Hors droit d'enregistrement et frais de notaire. Maison proposée, avec un contrat de construction de maison individuelle, dans le cadre de la loi du 19/12/1990, au prix de 290 800 € (Hors branchements et raccordements, papiers peints, peintures, revêtement de sol dans les chambres, qui sont chiffrés dans les travaux qui restent à charge du client. Tarif modifiable sans préavis). Étiquette énergie : A. Différents modèles disponibles pour ce terrain. Assurances et garanties du constructeur comprises (RC professionnelle, décennale, dommage ouvrage).

Contactez l'agence de Boos

02 35 80 66 66

    * Champs obligatoires

    Vos informations sont traitées par HEXAOM et transmises à un conseiller commercial qui vous contactera afin de répondre à votre demande. Les plans et images présentés sur notre site sont la propriété d’HEXAOM et ne peuvent pas être reproduits sans son accord. Pour retrouver notre politique de protection des données personnelles et exercer vos droits conformément à la « loi informatique et liberté » cliquez-ici.