Maison neuve à
Mesnil-Raoul (76520) Référence : KXA2388044_2

Prix du projet : Maison avec Terrain

prix 442 000 €

  • 8 pièces
  • 5 chambres
  • Surface maison 200 m2

VENTE : maison F8 (200 m²) à Mesnil-Raoul
PROCHE DE ROUEN - MAISON 8 PIÈCES NEUVE
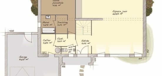
À vendre : située à deux pas de Rouen, nous vous proposons à Mesnil-Raoul (76520), cette maison de 8 pièces de 200 m² et de 2 300 m² de terrain. Son intérieur inclut cinq chambres, une cuisine et deux salles de bains.
Il s'agit d'une maison de 2 niveaux. Elle est neuve.
L'École Maternelle la Petite Sirène est implantée à moins de 10 minutes à pied. Des autoroutes et les nationales N28, N338 et N138 sont accessibles à moins de 18 km. Il y a deux commerces à quelques minutes du bien.
Elle est à vendre pour la somme de 442 000 €.
Contactez Kévin XAVIER ALVES (06-58-91-13-87) pour obtenir de plus amples renseignements sur cette maison. Maisons Balency Boos vous accompagne à toutes les étapes de votre projet et dans toutes vos démarches.

Annonce proposée par un Agent Commercial Partenaire.

Mentions légales

Terrain proposé par un partenaire foncier selon disponibilités et autorisation de publicité au prix de 189 000 €. Hors droit d'enregistrement et frais de notaire. Terrain + Maison proposés au prix de 253 000 € (Hors branchements et raccordements, papiers peints, peintures, revêtement de sol dans les chambres. Tarif modifiable sans préavis). Etiquette énergie : A. Différents modèles disponibles pour ce terrain. Assurances et garanties du constructeur (RC professionnelle, décennale, dommage ouvrage, garantie de remboursement de l'acompte, livraison à prix et délai convenu) : https://www.maisons-balency.fr/informations-legales/. HEXAOM Services est enregistré auprès de l'ORIAS en tant que Courtier en financement, Niveau 1, sous le numéro 14001345.

Contactez l'agence de Boos

02 35 80 66 66

    * Champs obligatoires

    Vos informations sont traitées par HEXAOM et transmises à un conseiller commercial qui vous contactera afin de répondre à votre demande. Les plans et images présentés sur notre site sont la propriété d’HEXAOM et ne peuvent pas être reproduits sans son accord. Pour retrouver notre politique de protection des données personnelles et exercer vos droits conformément à la « loi informatique et liberté » cliquez-ici.