Maison neuve à
Mesnil-Raoul (76520) Référence : KXA2388044_4

Prix du projet : Maison avec Terrain

prix 338 000 €

  • 5 pièces
  • 3 chambres
  • Surface maison 120 m2

Mesnil-Raoul : maison de 5 pièces (120 m²) à vendre
MAISON 5 PIÈCES NEUVE - PROCHE DE ROUEN
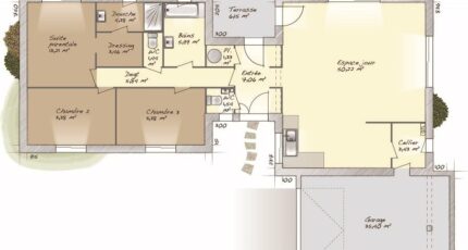
À quelques kilomètres de Rouen, nous vous proposons cette maison de 5 pièces de plain-pied de 120 m² en vente à Mesnil-Raoul (76520). Elle propose trois chambres, une cuisine et deux salles de bains.
Le terrain du bien est de 2 300 m².
Cette maison est neuve.
On trouve l'École Maternelle la Petite Sirène à moins de 10 minutes à pied. Des autoroutes et les nationales N28, N338 et N138 sont accessibles à moins de 18 km. Il y a deux commerces à quelques minutes du logement.
Son prix de vente est de 338 000 €.
Contactez Kévin XAVIER ALVES (06-58-91-13-87) pour toute question sur la propriété, sur les modalités de vente ou sur les démarches à suivre.

Annonce proposée par un Agent Commercial Partenaire.

Mentions légales

Terrain proposé par un partenaire foncier selon disponibilités et autorisation de publicité au prix de 189 000 €. Hors droit d'enregistrement et frais de notaire. Terrain + Maison proposés au prix de 149 000 € (Hors branchements et raccordements, papiers peints, peintures, revêtement de sol dans les chambres. Tarif modifiable sans préavis). Etiquette énergie : A. Différents modèles disponibles pour ce terrain. Assurances et garanties du constructeur (RC professionnelle, décennale, dommage ouvrage, garantie de remboursement de l'acompte, livraison à prix et délai convenu) : https://www.maisons-balency.fr/informations-legales/. HEXAOM Services est enregistré auprès de l'ORIAS en tant que Courtier en financement, Niveau 1, sous le numéro 14001345.

Contactez l'agence de Boos

02 35 80 66 66

    * Champs obligatoires

    Vos informations sont traitées par HEXAOM et transmises à un conseiller commercial qui vous contactera afin de répondre à votre demande. Les plans et images présentés sur notre site sont la propriété d’HEXAOM et ne peuvent pas être reproduits sans son accord. Pour retrouver notre politique de protection des données personnelles et exercer vos droits conformément à la « loi informatique et liberté » cliquez-ici.