Maison neuve à
Mézy-sur-Seine
(78250) Référence :
MU2253214_9
Prix du projet : Maison avec Terrain
prix 319 000 €
- 5 pièces
- 3 chambres
- Surface maison 90 m2
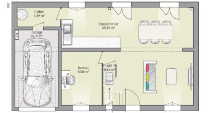
Mézy-sur-Seine : maison F5 (90 m²) en vente
IDÉALEMENT SITUÉE - MAISON 5 PIÈCES NEUVE
En vente : au pied de la gare de Meulan-Hardricourt (Paris à 45 min par le Transilien J), idéalement située dans Mézy-sur-Seine (78250), nous vous proposons cette maison de 5 pièces de 90 m². Son intérieur dispose de trois chambres, d'une cuisine et d'une salle de bains.
Le terrain du bien s'étend sur 484 m².
Il s'agit d'une maison de 2 niveaux. Elle est neuve.
Ce bien est situé dans un quartier prisé. Il y a l'École Primaire les Bergeronnettes à moins de 10 minutes à pied. Niveau transports en commun, on trouve 14 gares à moins de 10 minutes en voiture. On trouve un tennis, une bibliothèque et une poissonnerie à proximité du logement.
Il est proposé à l'achat pour 319 000 €.
N'hésitez pas à prendre contact avec Mylann URBANSKY (tél : 06-23-32-28-23) pour toute question sur la maison. Maisons Balency Pierrelaye vous accompagne dans tous vos projets immobiliers et dans toutes vos démarches.
Annonce proposée par un Agent Commercial Partenaire.
Mentions légales
Terrain proposé par un partenaire foncier selon disponibilités et autorisation de publicité au prix de 139 000 €. Hors droit d'enregistrement et frais de notaire. Maison proposée, avec un contrat de construction de maison individuelle, dans le cadre de la loi du 19/12/1990, au prix de 180 000 € (Hors branchements et raccordements, papiers peints, peintures, revêtement de sol dans les chambres, qui sont chiffrés dans les travaux qui restent à charge du client. Tarif modifiable sans préavis). Étiquette énergie : A. Différents modèles disponibles pour ce terrain. Assurances et garanties du constructeur comprises (RC professionnelle, décennale, dommage ouvrage).Agence Maisons Balency de Baillet-en-France (95560)
- Téléphone :
- 01 34 46 05 23
- Adressse :
- 81 rue de Paris
95560 Baillet-en-France, France
