Maison neuve à
Milly-la-Forêt
(91490) Référence :
KM2353385_2
Prix du projet : Maison avec Terrain
prix 285 000 €
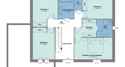
- 6 pièces
- 4 chambres
- Surface maison 136 m2
OPPORTUNITÉ UNIQUE PROCHE MILLY-LA-FORÊT (Noisy sur Ecole)
Devenez Propriétaire avec Maisons Balency : Deux Petits Terrains à Prix Maîtrisé. EXEMPLE TERRAIN + CONSTRUCTION
Maisons Balency (Agence d'Ormoy, Groupe HEXAÔM - Leader de la Construction en France depuis plus de 100 ans) vous présente une occasion rare de réaliser votre projet de construction neuve dans le secteur très recherché de Milly-la-Forêt.Proche Milly-la-Forêt (Noisy sur Ecole)
Qualité de Vie et Commodités :Choisissez un cadre de vie exceptionnel, alliant nature et praticité. La commune vous offre :
Éducation : Écoles Maternelles, Élémentaires et un Collège sur place pour faciliter le quotidien de votre famille.
Accessibilité : Proximité des transports (bus vers RER D et Fontainebleau) et accès rapide aux grands axes routiers.
Cadre : Un environnement préservé, aux portes du Parc Naturel Régional du Gâtinais et de la Forêt de Fontainebleau.
Nous vous proposons deux lots de petite superficie, idéaux pour la conception de maisons compactes permettant une construction sur 2 limites séparatives pour maximiser votre espace intérieur :
Lot A : Superficie de 236 m² avec une façade de 6.49 m, au prix de 59 000 € .
Lot B : Superficie de 186 m² avec une façade de 6.51 m, au prix de 55 000 €.
Détails importants : Ces terrains sont non viabilisés, mais l'ensemble des réseaux (eau, électricité, gaz, assainissement) est disponible en bordure de parcelle.
L'Expertise Maisons Balency ORMOY à Votre ServiceAvec votre équipe de l'Agence d'Ormoy, forte de plus de 25 ans d'expérience et d'une expertise en Architecture, vous bénéficiez d'un accompagnement unique, gratuit avant la signature du CCMI :
Analyse Expertise : Étude approfondie du PLU et des documents administratifs.
Conception Sur-Mesure : Dessin de votre projet en plans 2D et insertions 3D réalistes, conçu pour ces parcelles.
Transparence Budgétaire : Chiffrage global et détaillé incluant le terrain, la construction, les frais et les
Mentions légales
Terrain proposé par un partenaire foncier selon disponibilités et autorisation de publicité au prix de 59 000 €. Hors droit d'enregistrement et frais de notaire. Terrain + Maison proposés au prix de 285 000 € (Hors branchements et raccordements, papiers peints, peintures, revêtement de sol dans les chambres. Tarif modifiable sans préavis). Etiquette énergie : A. Différents modèles disponibles pour ce terrain. Assurances et garanties du constructeur (RC professionnelle, décennale, dommage ouvrage, garantie de remboursement de l'acompte, livraison à prix et délai convenu) : https://www.maisons-balency.fr/informations-legales/. HEXAOM Services est enregistré auprès de l'ORIAS en tant que Courtier en financement, Niveau 1, sous le numéro 14001345.Agence Maisons Balency de Ormoy (91540)
- Téléphone :
- 09 67 70 15 81
- Adressse :
- 23 chemin de Tournenfils - 1er étage
91540 Ormoy, France
