Maison neuve à
Mittainville
(78125) Référence :
TD2332171_1
Prix du projet : Maison avec Terrain
prix 519 300 €
- 7 pièces
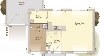
- 4 chambres
- Surface maison 160 m2
VENTE d'une maison F7 (160 m²) à Mittainville
IDÉALEMENT SITUÉE - MAISON 7 PIÈCES NEUVE
À deux pas de Chartres, ayez le coup de coeur pour cette maison de 7 pièces de 160 m² avec vue sur jardin idéalement située dans Mittainville (78125). Elle inclut quatre chambres, une cuisine et deux salles de bains.
Le terrain du bien est de 1 124 m².
Cette maison comporte 2 niveaux. Elle est neuve.
Cette maison est située dans un quartier convoité. Tous les types d'établissements scolaires (maternelle, élémentaire et secondaire) se trouvent à moins de 10 minutes en voiture, tout comme trois crèches à moins de 10 minutes à pied. Côté transports, il y a la gare Épernon à moins de 10 minutes en voiture. On trouve des tennis, des bibliothèques, deux bassins de natation, des commerces, des boulangeries, quatre supermarchés, deux bureaux de poste et trois supérettes à proximité. Ne manquez pas le marché Place du marché chaque samedi matin.
Son prix de vente est de 519 300 €.
Contactez notre agence (DUTEURTRE Thibault : 06-23-41-73-81) pour toute question sur la maison, sur les modalités de vente ou sur les démarches à suivre. Maisons Balency Coignières est là pour vous accompagner à toutes les étapes de votre projet.
Annonce proposée par un Agent Commercial Partenaire.
Mentions légales
Terrain proposé par un partenaire foncier selon disponibilités et autorisation de publicité au prix de 154 000 €. Hors droit d'enregistrement et frais de notaire. Maison proposée, avec un contrat de construction de maison individuelle, dans le cadre de la loi du 19/12/1990, au prix de 365 300 € (Hors branchements et raccordements, papiers peints, peintures, revêtement de sol dans les chambres, qui sont chiffrés dans les travaux qui restent à charge du client. Tarif modifiable sans préavis). Étiquette énergie : A. Différents modèles disponibles pour ce terrain. Assurances et garanties du constructeur comprises (RC professionnelle, décennale, dommage ouvrage).Agence Maisons Balency de Coignières (78310)
- Téléphone :
- 01 34 61 42 59
- Adressse :
- Domexpo Ouest
78310 Coignières, France
