Maison neuve à
Mittainville
(78125) Référence :
TD2383326_2
Prix du projet : Maison avec Terrain
prix 546 000 €
- 7 pièces
- 4 chambres
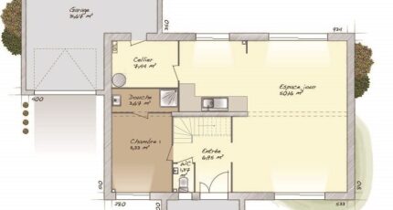
- Surface maison 160 m2
VENTE : maison F7 (160 m²) à Mittainville
IDÉALEMENT SITUÉE - MAISON 7 PIÈCES NEUVE
À vendre : située à quelques kilomètres de Chartres, venez découvrir, idéalement située dans Mittainville (78125), cette maison de 7 pièces de 160 m².
Cette maison comporte 2 niveaux. Son intérieur dispose de quatre chambres, d'une cuisine et de deux salles de bains. Cette maison est neuve.
Le terrain de la propriété est de 1 124 m².
La maison se situe dans un quartier attractif. Des établissements scolaires du primaire et du secondaire sont implantés à moins de 10 minutes en voiture, tout comme trois structures d'accueil pour la petite enfance à moins de 10 minutes à pied. Niveau transports en commun, il y a la gare Épernon à moins de 10 minutes en voiture. On trouve des tennis, des bibliothèques, deux bassins de natation, des commerces, des boulangeries, quatre supermarchés, deux bureaux de poste et trois supérettes à proximité. Ne manquez pas le marché Place du marché tous les samedis matin.
Elle est proposée à l'achat pour 546 000 €.
Contactez Thibault DUTEURTRE (tél : 06-23-41-73-81) pour toute question sur la propriété, sur les démarches à suivre ou sur les modalités de vente.
Annonce proposée par un Agent Commercial Partenaire.
Mentions légales
Terrain proposé par un partenaire foncier selon disponibilités et autorisation de publicité au prix de 167 000 €. Hors droit d'enregistrement et frais de notaire. Terrain + Maison proposés au prix de 379 000 € (Hors branchements et raccordements, papiers peints, peintures, revêtement de sol dans les chambres. Tarif modifiable sans préavis). Etiquette énergie : A. Différents modèles disponibles pour ce terrain. Assurances et garanties du constructeur (RC professionnelle, décennale, dommage ouvrage, garantie de remboursement de l'acompte, livraison à prix et délai convenu) : https://www.maisons-balency.fr/informations-legales/. HEXAOM Services est enregistré auprès de l'ORIAS en tant que Courtier en financement, Niveau 1, sous le numéro 14001345.Agence Maisons Balency de Coignières (78310)
- Téléphone :
- 01 34 61 42 59
- Adressse :
- Domexpo Ouest
78310 Coignières, France
