Maison neuve à
Mittainville
(78125) Référence :
TD2443661_1
Prix du projet : Maison avec Terrain
prix 519 300 €
- 7 pièces
- 4 chambres
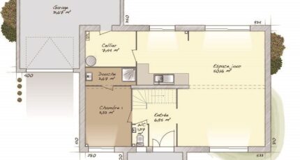
- Surface maison 160 m2
Maison de 7 pièces (160 m²) à vendre à Mittainville
IDÉALEMENT SITUÉE - MAISON 7 PIÈCES NEUVE
À deux pas de Chartres, nous vous proposons cette maison de 7 pièces de 160 m² et de 1 124 m² de terrain avec vue sur jardin idéalement située dans Mittainville (78125). Elle se divise en quatre chambres, une cuisine et deux salles de bains.
C'est une maison de 2 niveaux. Elle est neuve.
Cette maison se trouve dans un quartier prisé. Tous les types d'établissements scolaires (maternelle, élémentaire et secondaire) sont implantés à moins de 10 minutes en voiture, tout comme trois crèches à moins de 10 minutes à pied. Niveau transports, on trouve la gare Épernon à moins de 10 minutes en voiture. Il y a des tennis, des bibliothèques, deux bassins de natation, des commerces, des boulangeries, quatre supermarchés, des épiceries et trois supérettes à proximité de la maison. Ne manquez pas le marché Place du marché tous les samedis matin.
Elle est à vendre pour la somme de 519 300 €.
N'hésitez pas à prendre contact avec Thibault DUTEURTRE (06-23-41-73-81) pour tout renseignement sur la maison.
Annonce proposée par un Agent Commercial Partenaire.
Mentions légales
Terrain proposé par un partenaire foncier selon disponibilités et autorisation de publicité au prix de 154 000 €. Hors droit d'enregistrement et frais de notaire. Terrain + Maison proposés au prix de 519 300 € (Hors branchements et raccordements, papiers peints, peintures, revêtement de sol dans les chambres. Tarif modifiable sans préavis). Etiquette énergie : A. Différents modèles disponibles pour ce terrain. Assurances et garanties du constructeur (RC professionnelle, décennale, dommage ouvrage, garantie de remboursement de l'acompte, livraison à prix et délai convenu) : https://www.maisons-balency.fr/informations-legales/. HEXAOM Services est enregistré auprès de l'ORIAS en tant que Courtier en financement, Niveau 1, sous le numéro 14001345.Agence Maisons Balency de Coignières (78310)
- Téléphone :
- 01 34 61 42 59
- Adressse :
- Domexpo Ouest
78310 Coignières, France
