Maison neuve à
Moisenay
(77950) Référence :
AA2330818_2
Prix du projet : Maison avec Terrain
prix 330 728 €
- 5 pièces
- 3 chambres
- Surface maison 90 m2
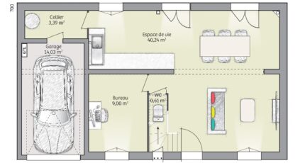
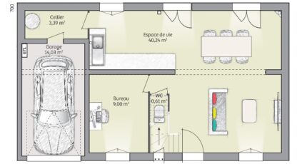
VENTE : maison F5 (90 m²) à Moisenay
IDÉALEMENT SITUÉE - MAISON 5 PIÈCES NEUVE
En vente : au pied du Transilien R (gare de Melun, 30 min de Paris), idéalement située dans Moisenay (77950), votre agence Maisons Balency Ormoy est ravie de vous présenter cette maison de 5 pièces de 90 m² et de 337 m² de terrain.
Cette maison compte 2 niveaux. Elle comporte trois chambres, une cuisine et une salle de bains. Cette maison est neuve.
La maison se situe dans un secteur convoité. On trouve l'École Primaire Lhioreau à moins de 10 minutes à pied. Côté transports, il y a la ligne de RER D (Melun) ainsi que cinq gares à moins de 10 minutes en voiture. Il y a une bibliothèque, un tennis et une boulangerie à proximité.
Son prix de vente est de 330 728 €.
Prenez contact avec au 06-51-51-80-60 pour toute information sur la maison ou sur les démarches à suivre. Donnez vie à vos projets immobiliers avec Maisons Balency Ormoy.
Annonce proposée par un Agent Commercial Partenaire.
Mentions légales
Terrain proposé par un partenaire foncier selon disponibilités et autorisation de publicité au prix de 127 000 €. Hors droit d'enregistrement et frais de notaire. Terrain + Maison proposés au prix de 203 728 € (Hors branchements et raccordements, papiers peints, peintures, revêtement de sol dans les chambres. Tarif modifiable sans préavis). Etiquette énergie : A. Différents modèles disponibles pour ce terrain. Assurances et garanties du constructeur (RC professionnelle, décennale, dommage ouvrage, garantie de remboursement de l'acompte, livraison à prix et délai convenu) : https://www.maisons-balency.fr/informations-legales/. HEXAOM Services est enregistré auprès de l'ORIAS en tant que Courtier en financement, Niveau 1, sous le numéro 14001345.Agence Maisons Balency de Ormoy (91540)
- Téléphone :
- 09 67 70 15 81
- Adressse :
- 23 chemin de Tournenfils - 1er étage
91540 Ormoy, France
