Maison neuve à
Monchy-Saint-Éloi
(60290) Référence :
MU2439857_1
Prix du projet : Maison avec Terrain
prix 250 000 €
- 5 pièces
- 3 chambres
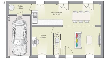
- Surface maison 90 m2
VENTE d'une maison de 5 pièces (90 m²) à Monchy-Saint-Éloi
IDÉALEMENT SITUÉE - VUE SANS VIS-À-VIS
Proche de la station Creil (Paris à 50 min avec le RER D), notre agence Maisons Balency Baillet-en-France est heureuse de vous proposer à vendre, idéalement située dans Monchy-Saint-Éloi (60290), cette maison de 5 pièces de 90 m² sans vis-à-vis.
Cette maison comporte 2 niveaux. Son intérieur compte trois chambres, une cuisine et une salle de bains. La maison est neuve.
Le terrain du bien est de 1 134 m².
La maison se situe dans un secteur recherché. L'École Primaire Eugène Cauchois se trouve à moins de 10 minutes à pied. Côté transports, il y a la station de RER Creil (ligne D) ainsi que 10 gares à moins de 10 minutes en voiture. Il y a une bibliothèque, deux boulangeries, des commerces, trois épiceries et une boucherie-charcuterie à proximité de la maison.
Elle est à vendre pour la somme de 250 000 €.
Contactez notre agence (Mylann URBANSKY : 06-23-32-28-23) pour plus de renseignements sur la maison, sur les démarches à suivre ou sur les modalités de vente. Maisons Balency Baillet-en-France vous accompagne à toutes les étapes de l'achat et dans tous vos projets immobiliers.
Annonce proposée par un Agent Commercial Partenaire.
Mentions légales
Terrain proposé par un partenaire foncier selon disponibilités et autorisation de publicité au prix de 88 000 €. Hors droit d'enregistrement et frais de notaire. Terrain + Maison proposés au prix de 250 000 € (Hors branchements et raccordements, papiers peints, peintures, revêtement de sol dans les chambres. Tarif modifiable sans préavis). Etiquette énergie : A. Différents modèles disponibles pour ce terrain. Assurances et garanties du constructeur (RC professionnelle, décennale, dommage ouvrage, garantie de remboursement de l'acompte, livraison à prix et délai convenu) : https://www.maisons-balency.fr/informations-legales/. HEXAOM Services est enregistré auprès de l'ORIAS en tant que Courtier en financement, Niveau 1, sous le numéro 14001345.Agence Maisons Balency de Baillet-en-France (95560)
- Téléphone :
- 01 34 46 05 23
- Adressse :
- 81 rue de Paris
95560 Baillet-en-France, France
