Maison neuve à
Monnerville
(91930) Référence :
PM2290565_2
Prix du projet : Maison avec Terrain
prix 233 000 €
- 3 pièces
- 4 chambres
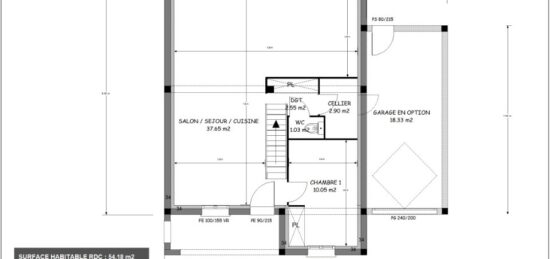
- Surface maison 103 m2
Monnerville en Île de France (91930), pour 233 000 € :
Plain-pied de 103 m² avec COMBLES AMÉNAGEABLES, constructible sur un terrain VIABILISÉ de 699 m² !
Saisissez l'opportunité de devenir propriétaire d'une charmante maison abordable de 4 chambres, modifiable selon vos goûts et votre budget, et à construire sur un beau lot avant.
Monnerville est située à 10 minutes de la gare d'Angerville (TER rejoignant Paris en moins d'une heure) ; à seulement 5 km de Méréville et 15 km d'Étampes, vous profiterez d'un cadre de vie paisible avec toutes les commodités : écoles à 4 et 5 minutes, collège à proximité et lycée à 15 min en voiture. Commerces, transports et services essentiels sont aussi à votre portée.
Avec Les Maisons Balency d'Ormoy spécifiquement, imaginez une maison qui vous ressemble, conforme aux normes RE2020. Nous concevons votre projet selon vos envies ou adaptons nos modèles existants.
Appelez-nous au 06 49 43 56 27 pour bénéficier d'une recherche foncière gratuite et démarrez ainsi votre projet en toute sérénité !
Annonce proposée par un Agent Commercial Partenaire.
Mentions légales
Terrain proposé par un partenaire foncier selon disponibilités et autorisation de publicité au prix de 96 000 €. Hors droit d'enregistrement et frais de notaire. Maison proposée, avec un contrat de construction de maison individuelle, dans le cadre de la loi du 19/12/1990, au prix de 137 000 € (Hors branchements et raccordements, papiers peints, peintures, revêtement de sol dans les chambres, qui sont chiffrés dans les travaux qui restent à charge du client. Tarif modifiable sans préavis). Étiquette énergie : A. Différents modèles disponibles pour ce terrain. Assurances et garanties du constructeur comprises (RC professionnelle, décennale, dommage ouvrage).Agence Maisons Balency de Ormoy (91540)
- Téléphone :
- 09 67 70 15 81
- Adressse :
- 23 chemin de Tournenfils - 1er étage
91540 Ormoy, France
